| 2023, PARIS (20) |
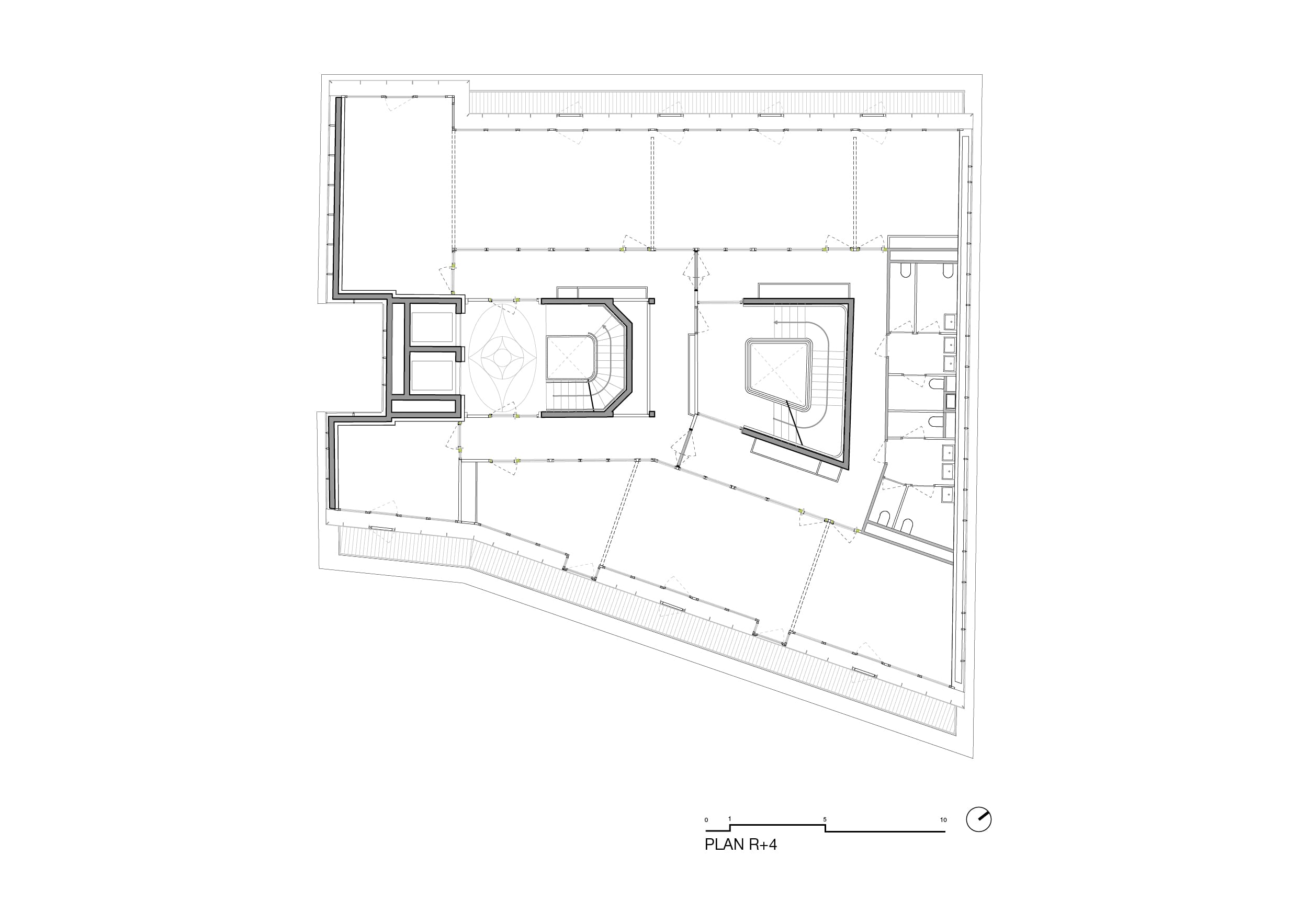
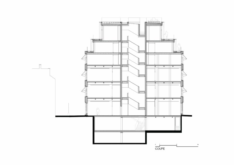
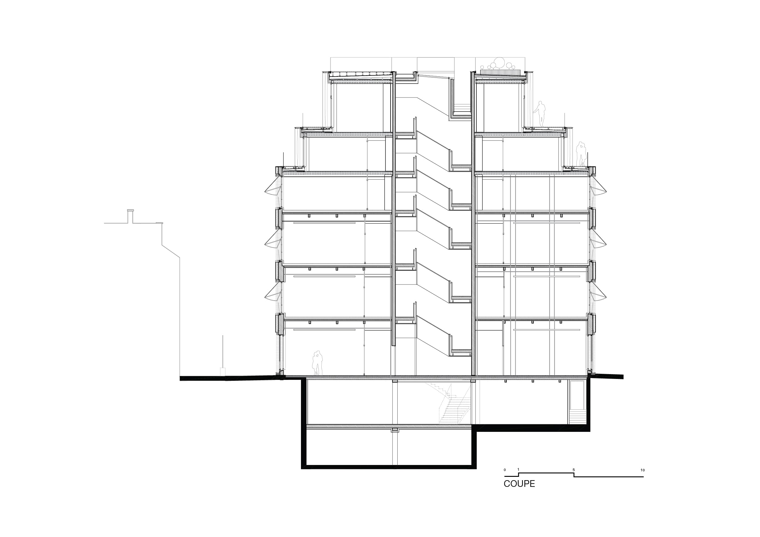
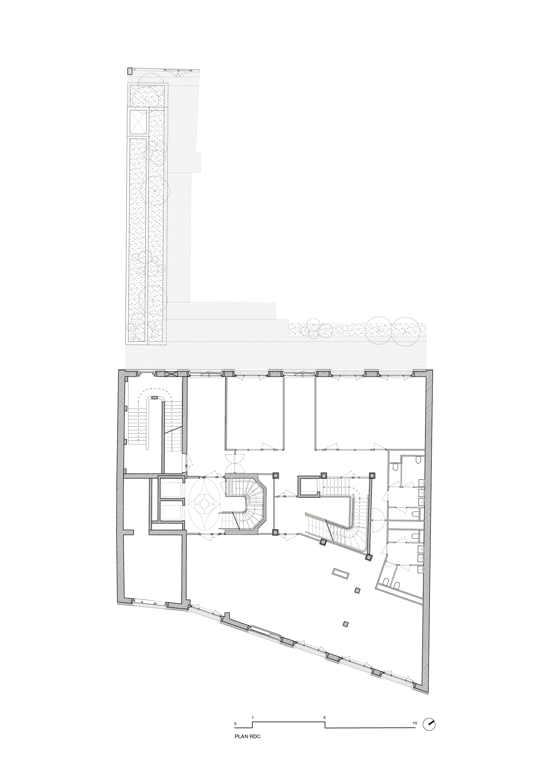
| RESTRUCTURATION & EXTENSION D’UN BÂTIMENT INDUSTRIEL EN CENTRE DE FORMATION ET D’ENSEIGNEMENT |
| ARCHITECTE – AAVP AVEC ARIANNA VELOCE – ANDREA GALLINA – JORGE TORRES – NICOLAS FONTAINE DESCAMBRES |
| BE – CARRIERE DIDIER GAZEAU – BMF – ALTO – ALTIA |
| MOA – AKIRYA |
| AMO – ARTELIA – MOBIUS |
| 9,6 M€ HT – 2 488 M² SDP |
| LABEL BREEAM GOOD – RT 2012 |
| ENTREPRISE – CCR – CRB – CHARPENTIER – GEOBAT – INEO – STE BYN – TSO REALI – HUGUET CREICHE – BILLIET – STYLIQUE – BIC |
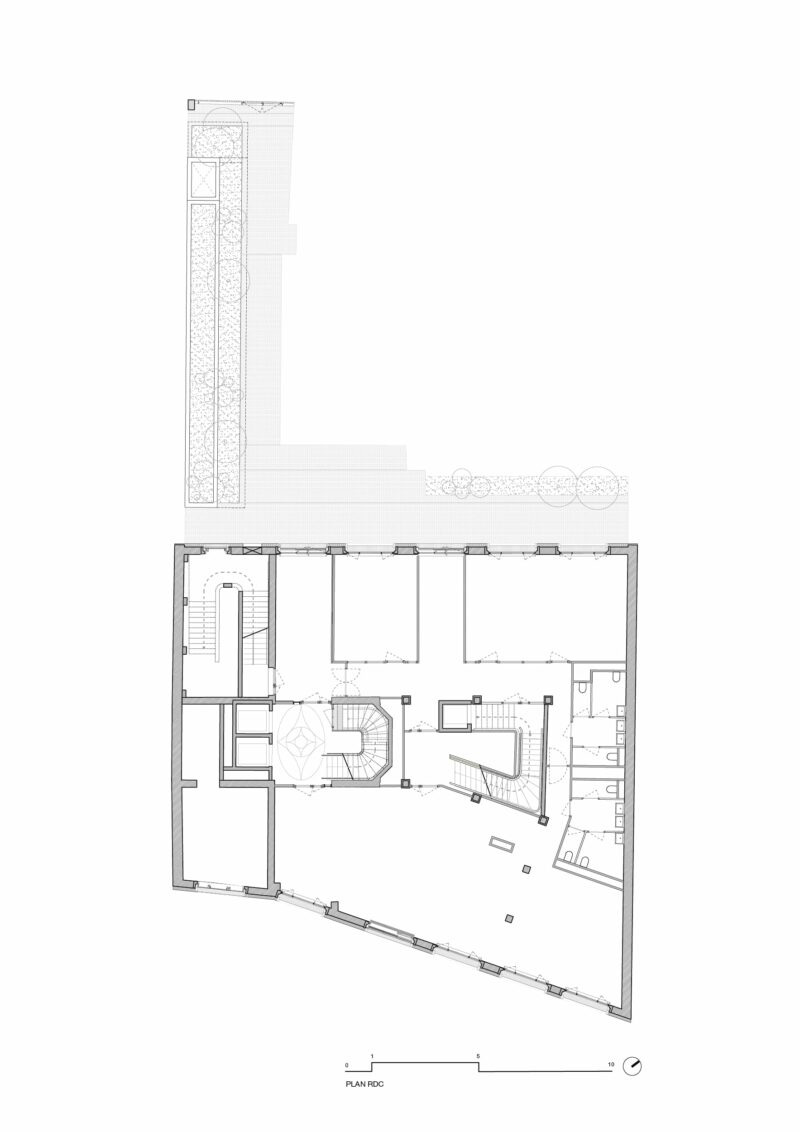
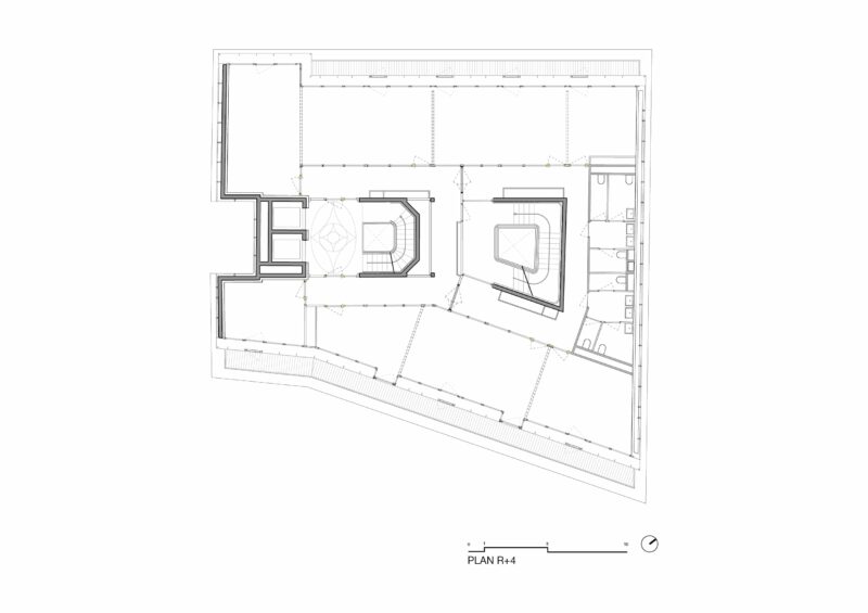
| SURÉLÉVATION EN STRUCTURE ACIER AVEC PLANCHER BB, FREE COOLING AVEC DOUBLE PEAU EN VERRE ET RIDEAU THERMIQUE CENTRAL, BRIQUE MASSIVE |
| PERSPECTIVE @INUI – PHOTO @NICOLAS TROUILLARD |

Nous utilisons des cookies pour optimiser notre site web.