| 2021, PARIS (13) |
| 80 LOGEMENTS AVEC 2 MAISONS DE VILLE & COMMERCES |
| ARCHITECTE – AAVP AVEC NICOLAS FONTAINE DESCAMBRES |
| PAYSAGISTE – DAVID BESSON GIRARD |
| BE – GUSTAVE INGÉNIEUR DU BOIS – ELFIMM – IDEEL – BMF – ALTIA |
| GRAPHISTE – CAMPING DESIGN |
| ARTISTE – CLAUDINE DRAI ARTISTE PLASTICIENNE – STÉPHANE VIGNY SCULPTEUR |
| MOA – EMERIGE RÉSIDENTIEL |
| 22,5 M€ HT – 8 700 M² SDP |
| RT 2012, PLAN CLIMAT VILLE DE PARIS |
| ENTREPRISE – SICRA – POULINGUE – UTB – MERROTO MILANI |
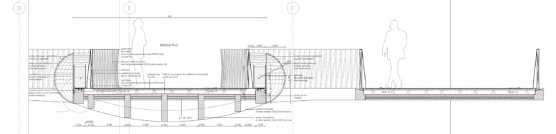
| PLANCHERS & POTEAUX BÉTON, MOB & BARDAGE BOIS, ÉXOSQUELETTE ET LOGGIAS EN BOIS MASSIF |
| PERSPECTIVE @TU VERRAS @AIR STUDIO – PHOTO @LUC BOEGLY |
Une question simple autant qu’essentielle guide la conception de Tolbiac : qu’est que le logement ? Ce ne devrait être ni un espace contraint, réduit à un radeau surnageant dans un océan urbain chahuté, ni la cellule calibrée pour un « ménage » imaginaire synthétisés par les outils statistiques, ni la matérialisation croisée de capacités d’emprunt rapportées au prix du foncier.
Le logement devrait élever l’individu au rang d’habitant du monde, lui installer un chez soi et dans la ville, relier à hier et demain, laisser contempler les ailleurs proches et lointains, structurer nos vues, faire toucher du doigt le minéral et le ligneux, le clair et le sombre, être caressant et rugueux, net et flou, accueillant comme un hôtel et simple comme un abri, rendre grand et petit à la fois.
Un bon immeuble de logement saurait apaiser l’agitation métropolitaine sans l’éteindre, faire salon privé et place publique, être à la fois cabane et palais, cultiver la vie bonne et laisser pousser la mauvaise herbe, veiller sur le sommeil de l’habitant et faire rêver le passant. Sans faire l’impasse sur les dimensions fonctionnelles de l’architecture, le projet de Tolbiac tente d’emmener le logement vers les formes multiples de l’habiter, en explorant l’expressivité des matériaux, le potentiel des espaces communs, les ouvertures du paysage et l’agencement des typologies, le rapport au lieu et à son histoire.
Longtemps, le croisement de la rue du Tolbiac et de la rue du Chevaleret annonçait un changement de paysage dans l’espace parisien, le passage d’un faubourg dense à un univers de voies ferrées, un fleuve industriel enjambé par un pont métallique. L’aménagement du quartier Seine Rive Gauche a effacé l’ouvrage d’art et enfouit la plaine ferroviaire sous un sol artificiel, au risque de verser dans une forme de ville générique exprimant peu les spécificités du lieu. A la charnière de la ville ancienne et la ville en formation, le projet des Étoffes de Tolbiac veut s’inscrire dans son site sans idéaliser le passé, évoquer une histoire parisienne particulière pour redonner une identité propre à une opération de logement de son temps, ouverte sur la ville tout en filtrant ses nuisances et ses stimulations les plus envahissantes.
Falaises urbaines
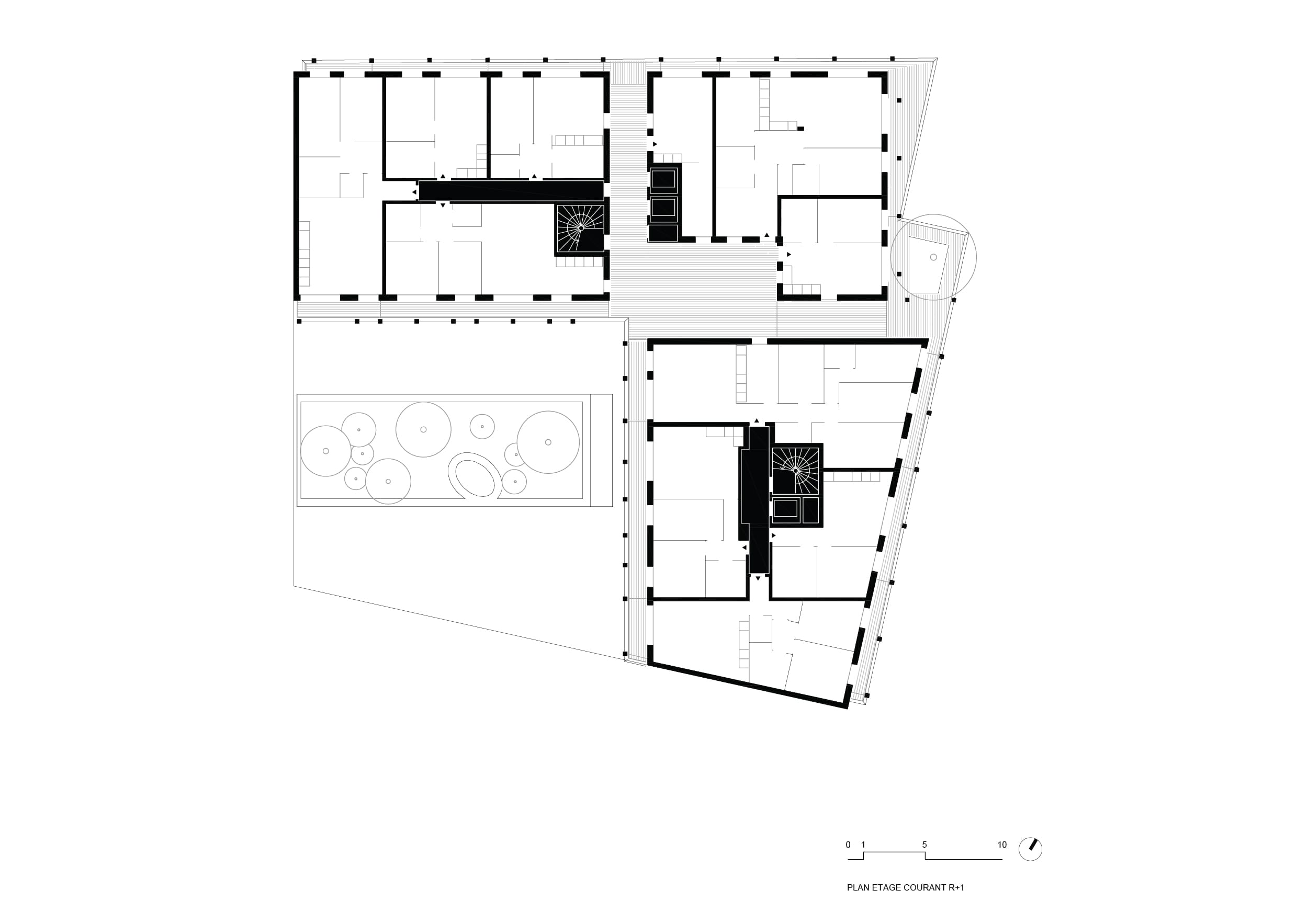
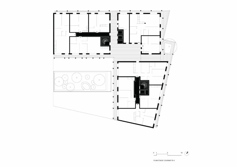
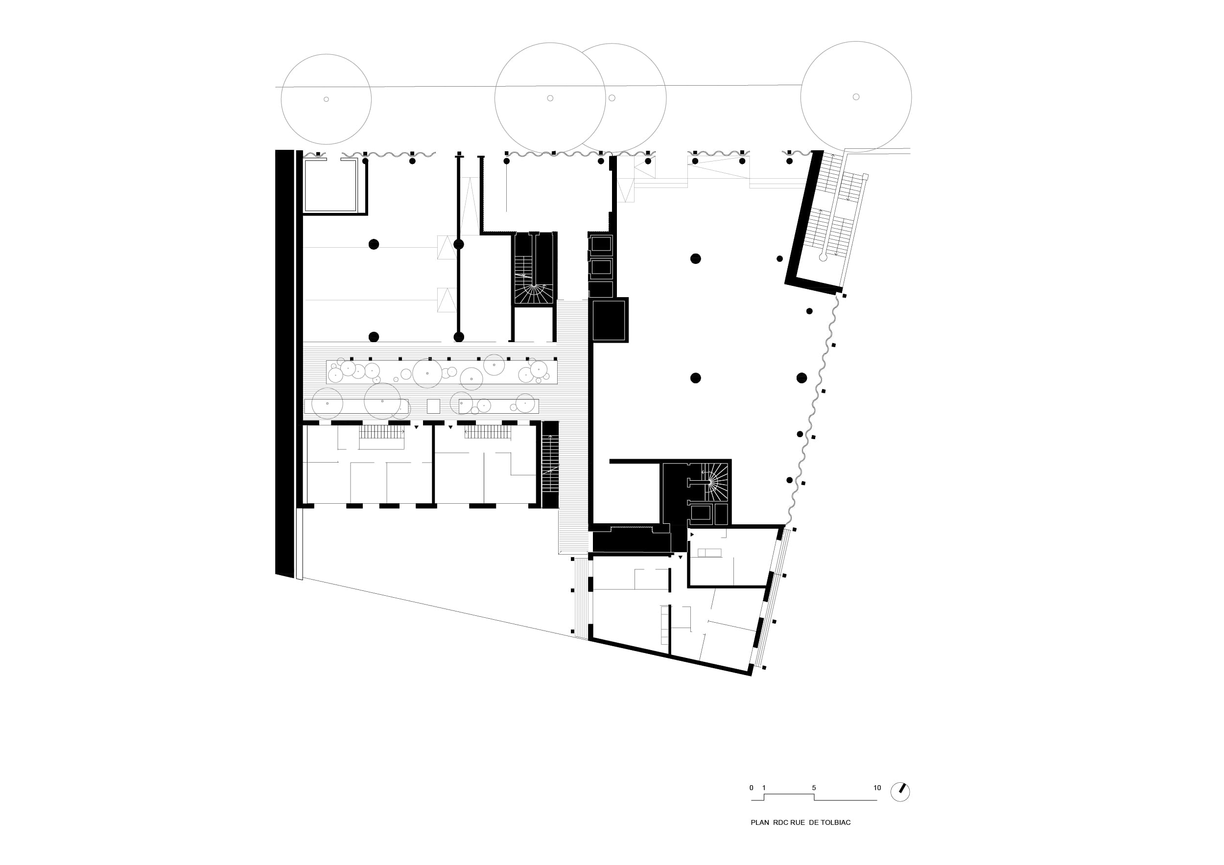
Le site occupe une position doublement stratégique, à l’angle de deux rues séparées par un dénivelé de près de sept mètres. L’escalier reliant historiquement les deux voies borde le terrain de l’opération, formé par la réunion de deux parcelles. Des ateliers artisanaux et des entrepôts construits des années 1920 aux années 1960 sont remplacés par une opération mixte comptant 3 000 m² de commerce et 5 000 m² de logement. La répartition des surfaces commerciales entre les rez-de-chaussée des deux rues minimise l’impact de l’activité, qui donne un socle aux logements se déployant à partir du R+1 sur la rue du Chevaleret. Les 88 appartements se répartissent entre quatre plots, dont trois sont réunis par des espaces communs et un plot indépendant en R+2 sur cour. La trame des balcons unifie les trois parties du projet montant à R+6 et R+8. Elle reconstitue le tissu continu de la rue parisienne
Un projet mixte bois béton
La dualité bois-béton guide la conception du projet. Les qualités mécaniques du béton, sa résistance au feu et ses capacités d’affaiblissement acoustique conduisent à l’employer en structure. Du mélèze est utilisé en revêtements sur toutes les surfaces, tandis que les structures des murs ossatures bois et les montants verticaux de la façade sont réalisés en pin Douglas. Les éléments bois visibles acquièrent par traitement autoclave une teinte sombre évoquant les façades des anciens hangars et entrepôt du Paris industriel. Les qualités tactiles du matériau autant que ses qualités visuelles sont mises en avant. Le bois massif a été préféré au lamellé collé pour les poteaux de la façade, avec l’intention de valoriser les qualités du matériau, développer un aspect architectonique rappelant l’origine naturelle de cet élément, en rupture avec les produits reconstitués par collage habituellement utilisé dans la construction bois. Des éléments en lamellé-collé sont mis en œuvre très ponctuellement pour la création de poutres courbes portant des espaces communs. Le métal est employé pour les garde-corps, avec une finition canon de fusil qui l’intègre à l’ensemble.
Décalage et interstices
La distinction entre architecture et construction se voit souvent dans les détails. Un jeu subtil règle l’emplacement des montant verticaux des balcons. Ils ne suivent pas une trame régulière, comme on pourrait le penser à première vue, mais se décalent à chaque niveau latéralement et verticalement de dix centimètres, venant progressivement en encorbellement sur l’espace de la rue. Le dispositif anime la façade et fait progresser la surface des balcons avec l’accroissement des étages. Cette grille qui unit les différents plots côté rue absorbe les vides laissés entre chaque bloc. Côté cour, les interstices deviennent des espaces communs, à la fois terrasses, placette, avec des trémies reliant visuellement les différents niveaux et l’ajout d’éléments extraordinaires, à l’instar des « nids », des salons suspendus partagés par les résidents. Le dédale des circulations revisite le joyeux désordre et les surprises des arrière-cours des faubourgs industriels parisien. Deux ans de pandémies aident à mesurer la valeur de ces espaces ouverts à tous les habitants, offrant une alternative au chez soi, et permettant à l’ensemble des résidents de profiter des vues sur la ville. La toiture jardin ouverte à tous ouvre à 240° sur un panorama empilant plusieurs décennies de l’évolution de Paris, et sur le ciel.
Diversité typologique
L’insertion de trois maisons en bande dans la cour du rez-de-chaussée complexifie et enrichit les parcours en cœur d’ilot. La déclivité nord sud a conduit à distribuer ces logements sur le principe du duplex descendant, l’accès se faisant au rdc cours, le côté jardin se retrouvant un niveau plus bas sur la façade opposée. Une bande linéaire de balcons double toutes les façades des logements. Son épaisseur varie suivant les étages et les nécessités d’articulations entre les différentes faces de l’opération. Plusieurs logements ont un accès direct par les parties communes, d’autres doivent passer par un couloir séparé des espaces extérieurs commun par une porte vitrée. Dans les espaces communs fermés, le traitement des détails renvoie à l’univers de l’hôtellerie de luxe, avec l’utilisation d’éclairages individualisés pour les portes d’entrées, sol textile orné d’un motif floral. Cette note sophistiquée couronne la dimension précieuse du logement. Elle est amplifiée dans le hall, qui reçoit un sol en marbre, des menuiseries anodisées et des luminaires réinterprétant l’applique grand siècle sur un ton ironique et décalé. Une paroi ondulée à double vitrage sépare le hall de la rue. Les jeux de reflets et de transparences produit par l’onde vitrée fait que la séparation public-privé n’est jamais vraiment là où on l’attend. Souvenir du palais des glaces des fêtes foraines, ce dispositif d’apparence simple annonce les intentions du projet : réenchanter l’habitat par la magie des sensations et des rencontres, au cœur d’une ville redevenant un grand paysage.

Nous utilisons des cookies pour optimiser notre site web.