| 2025, PANTIN (93) |
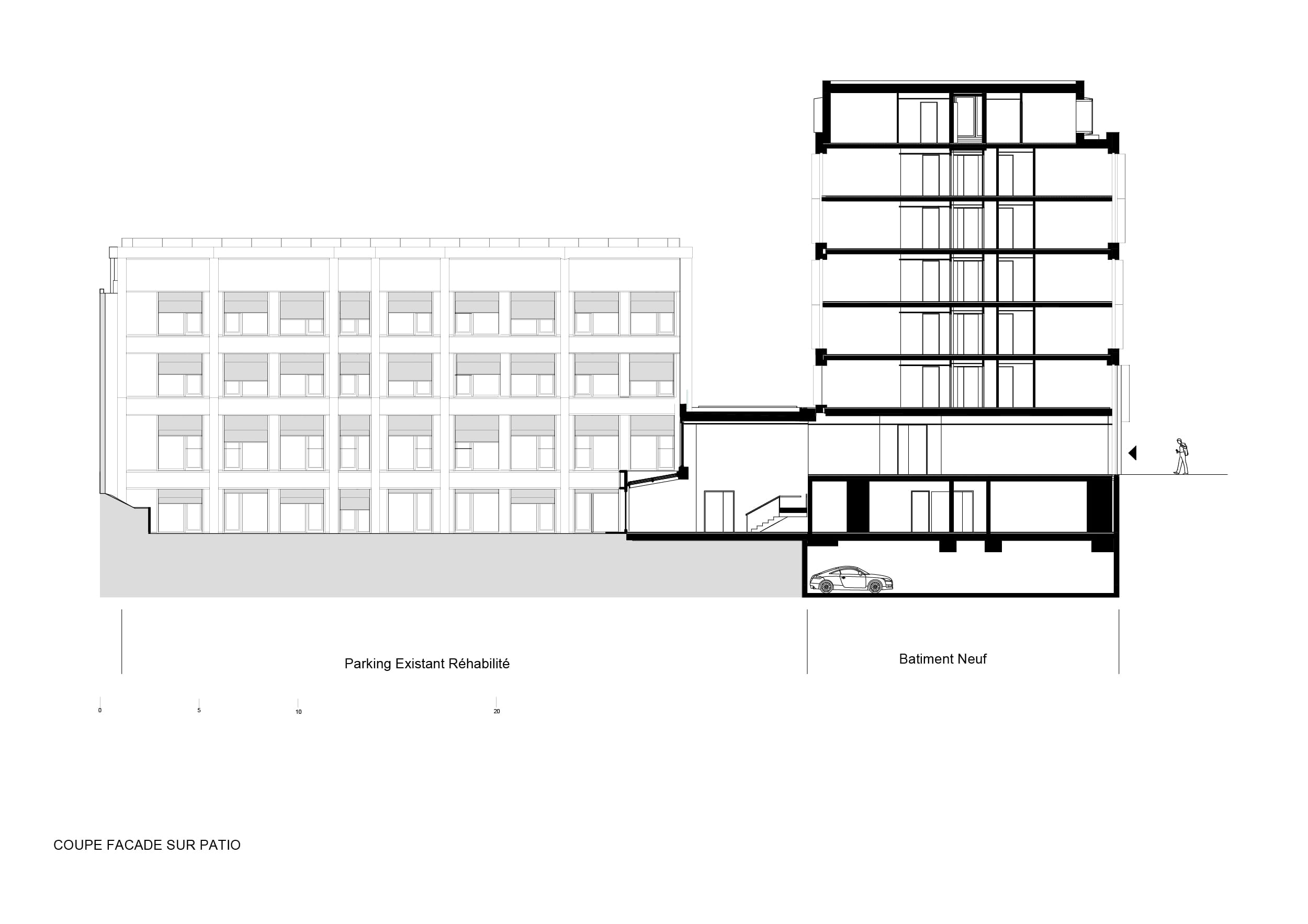
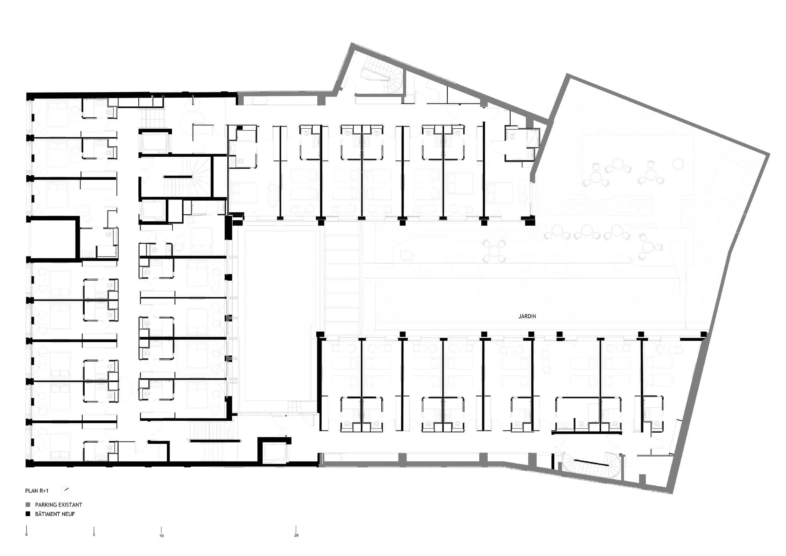
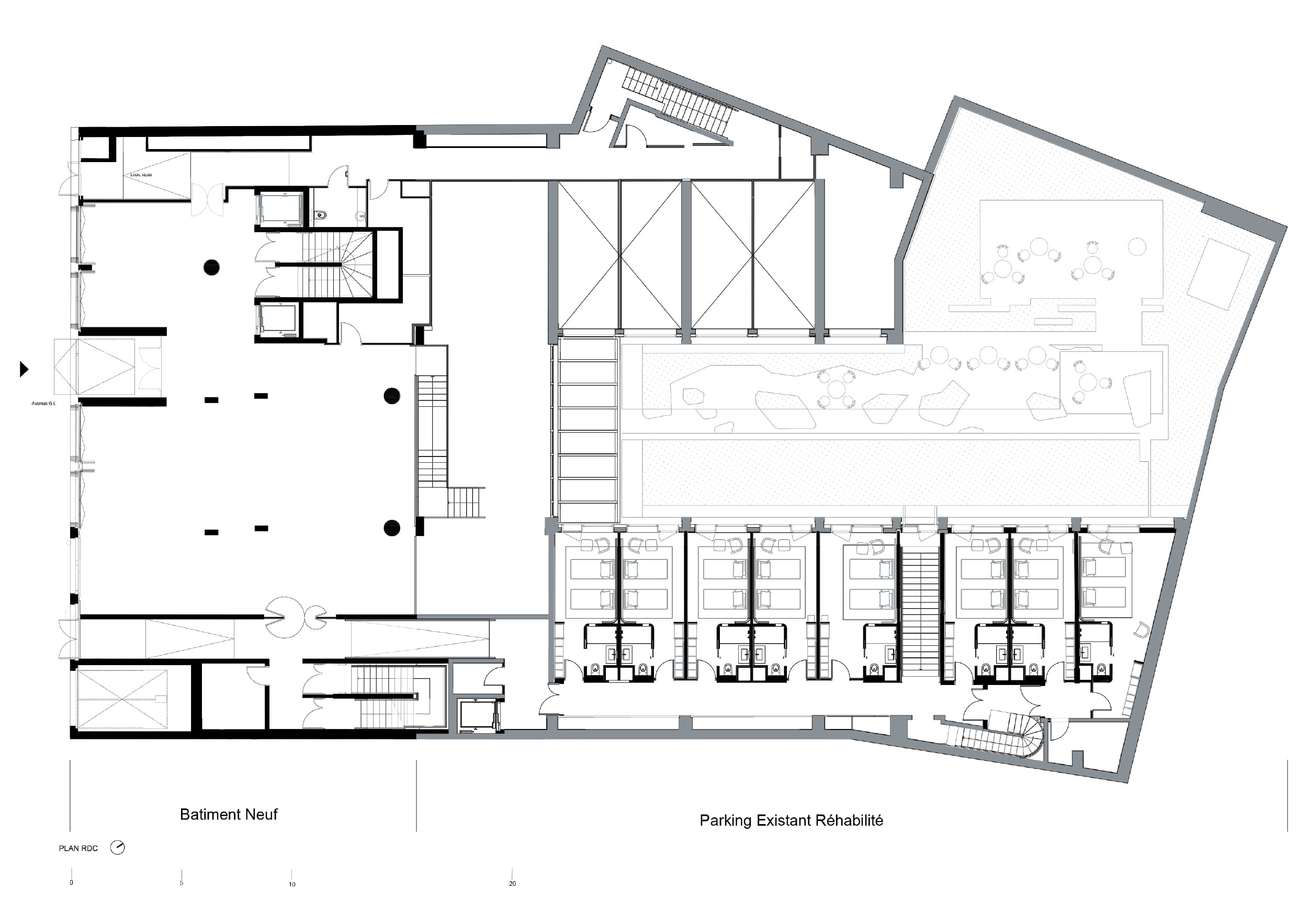
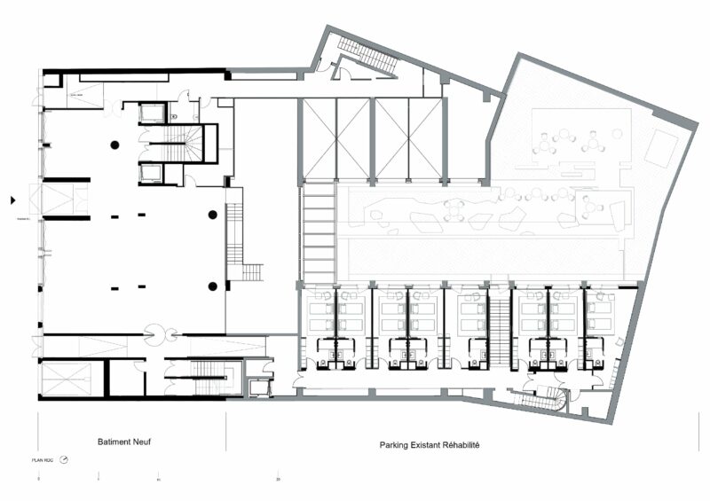
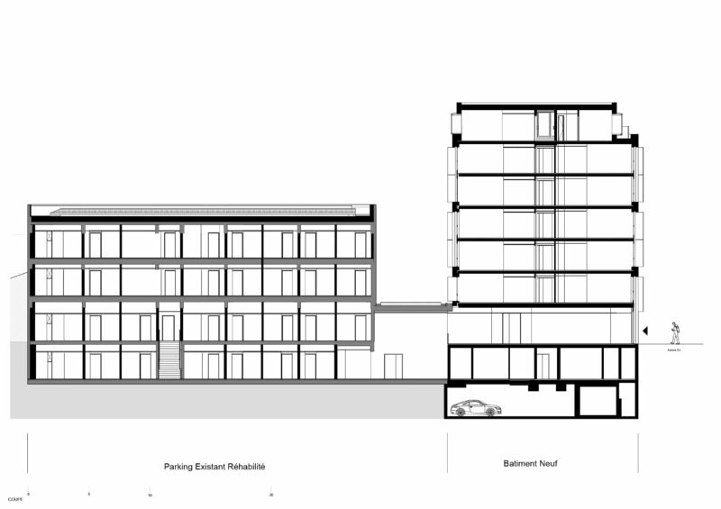
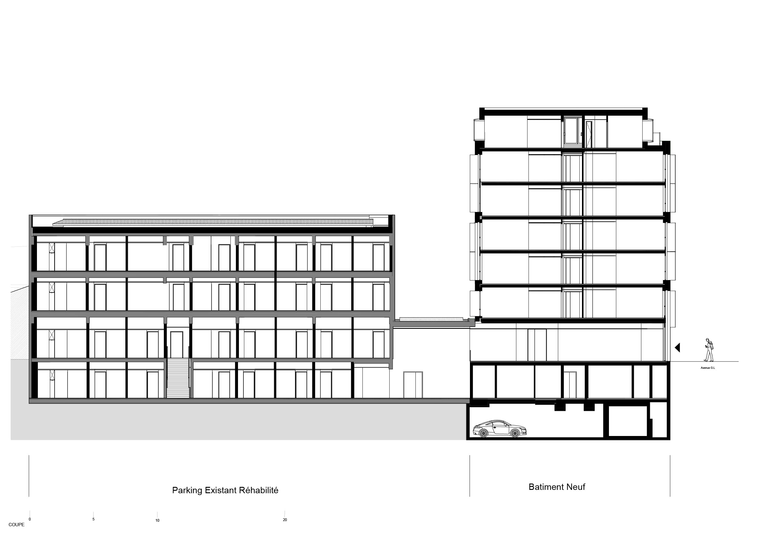
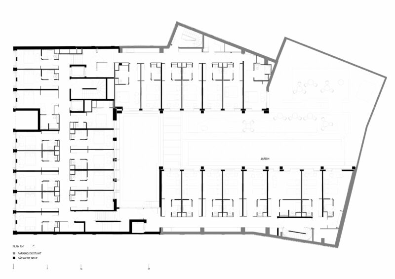
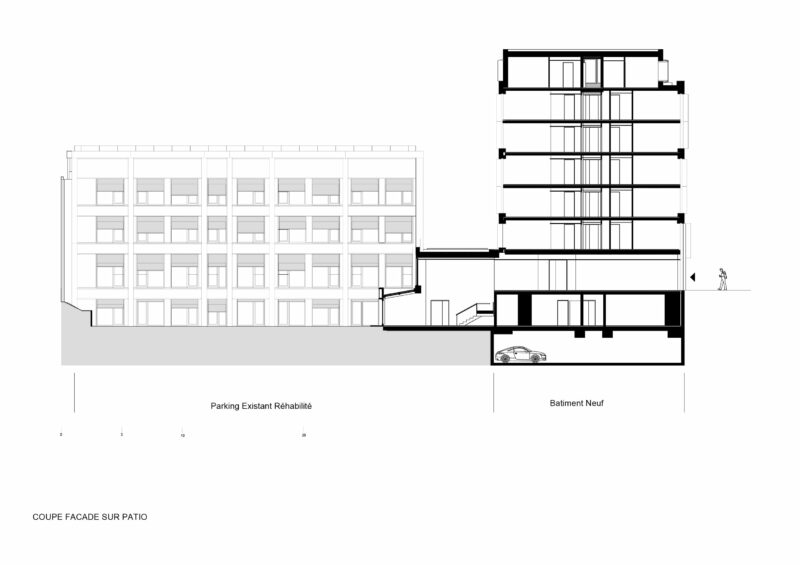
| HÔTEL TRIBE **** 131 CHAMBRES, RESTAURANT & SALLE DE CONFÉRENCE RECONVERSION D’UN PARKING AVEC EXTENSION |
| ARCHITECTE – AAVP + ANTONIO VIRGA ARCHITECTE AVEC THOMAS LASTENNET – PAULA VILAFRANCA |
| PAYSAGISTE – ATELIER ROBERTA |
| ARCHITECTE INTÉRIEUR – DOUBLE A DESIGN LTD |
| BE – EVP – BMF – AREA – BLEUZE – ALTIA – HACS |
| CONCEPTEUR LUMIÈRE – 8’18’’ |
| PRODUCTION D’ART – QUAI 36 – ARTISTE YANN L’OUTSIDER |
| MOA – GROUPE GALIA |
| 19,2 M€ HT + 2,5 M€ HT FF&N – 4 694 M² SDP |
| RT 2012 |
| EXOSQUELETTE BÉTON TEINTÉ PRÉFABRIQUÉ, MOB & BARDAGE BOIS |
| PERSPECTIVE @BUILT – PHOTO @NICOLAS TROUILLARD @AAVP @CYRILLE LALLEMENT |

Nous utilisons des cookies pour optimiser notre site web.