| 2016, PARIS (10) |
| 69 LOGEMENTS SOCIAUX & PARKING, 1 GYMNASE, 1 SALLE DE DANSE POUR LA VILLE DE PARIS |
| ARCHITECTE – AAVP AVEC NICOLAS FONTAINE DESCAMBRES – MARIE BRODIN |
| PAYSAGISTE – ATELIER ROBERTA |
| BE – EVP – CHOULET – OASIIS – ALTIA – BMF |
| MOA – ICF HABITAT LA SABLIÈRE + VILLE DE PARIS |
| 15,8 M€ HT – 6 145 M² SDP |
| CERQUAL – CERTIVEA – PLAN CLIMAT DE LA VILLE DE PARIS |
| ENTREPRISE – EIFFAGE CONSTRUCTION |
| STRUCTURE BÉTON, CLIN DE BOIS, STRUCTURE ACIER ET TÔLE ALUMINIUM THERMOLAQUÉE PERFORÉE, ACCÈS AUX LOGEMENTS PAR COURSIVES |
| PHOTO @LUC BOEGLY |
| PRIX – FINALISTE AU PRIX DE L’ÉQUERRE D’ARGENT 2016 – LAURÉAT AUX ARCHIDESIGN CLUB AWARDS 2017 – MENTION HONORABLE PLAN AWARD 2017 |
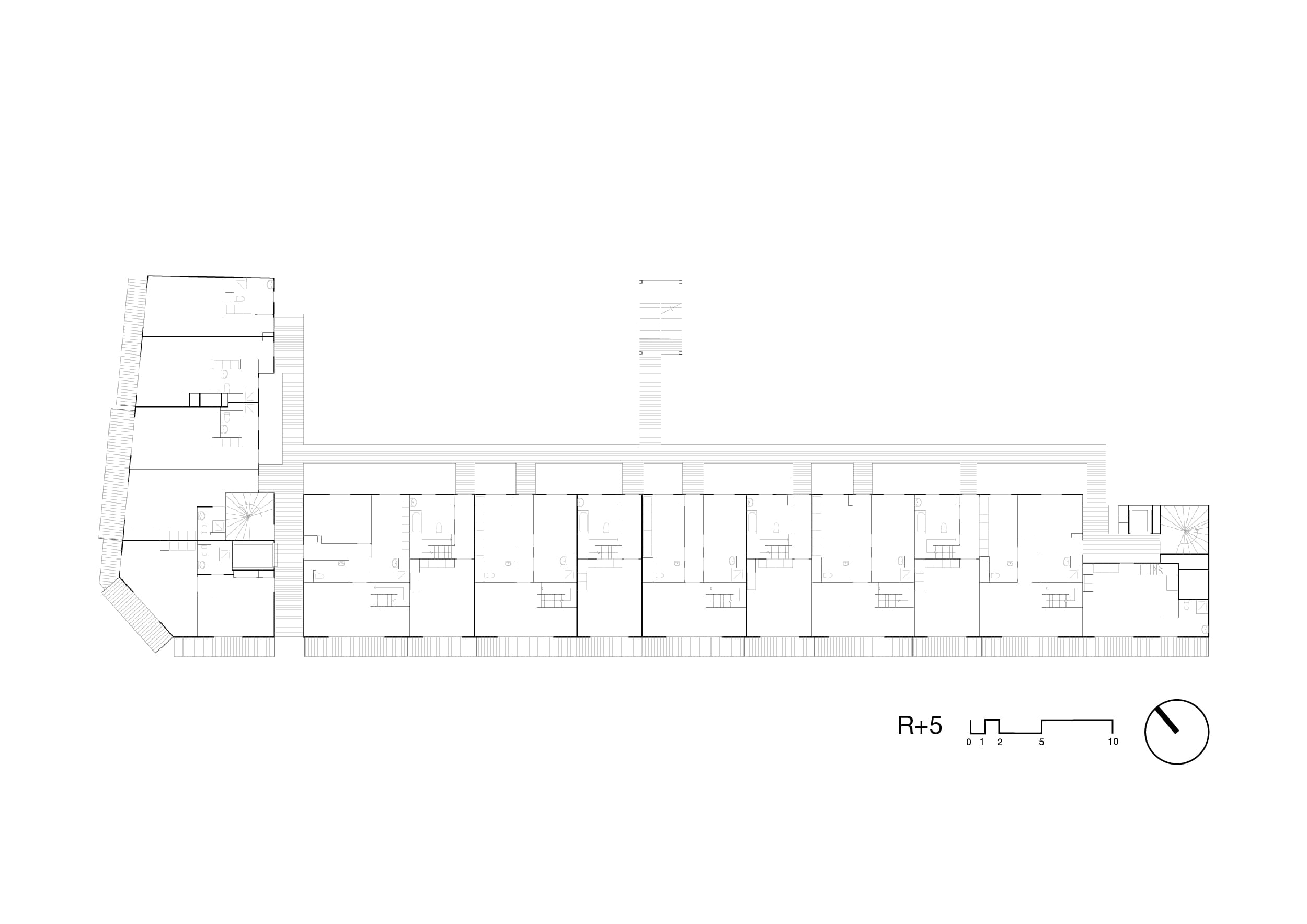
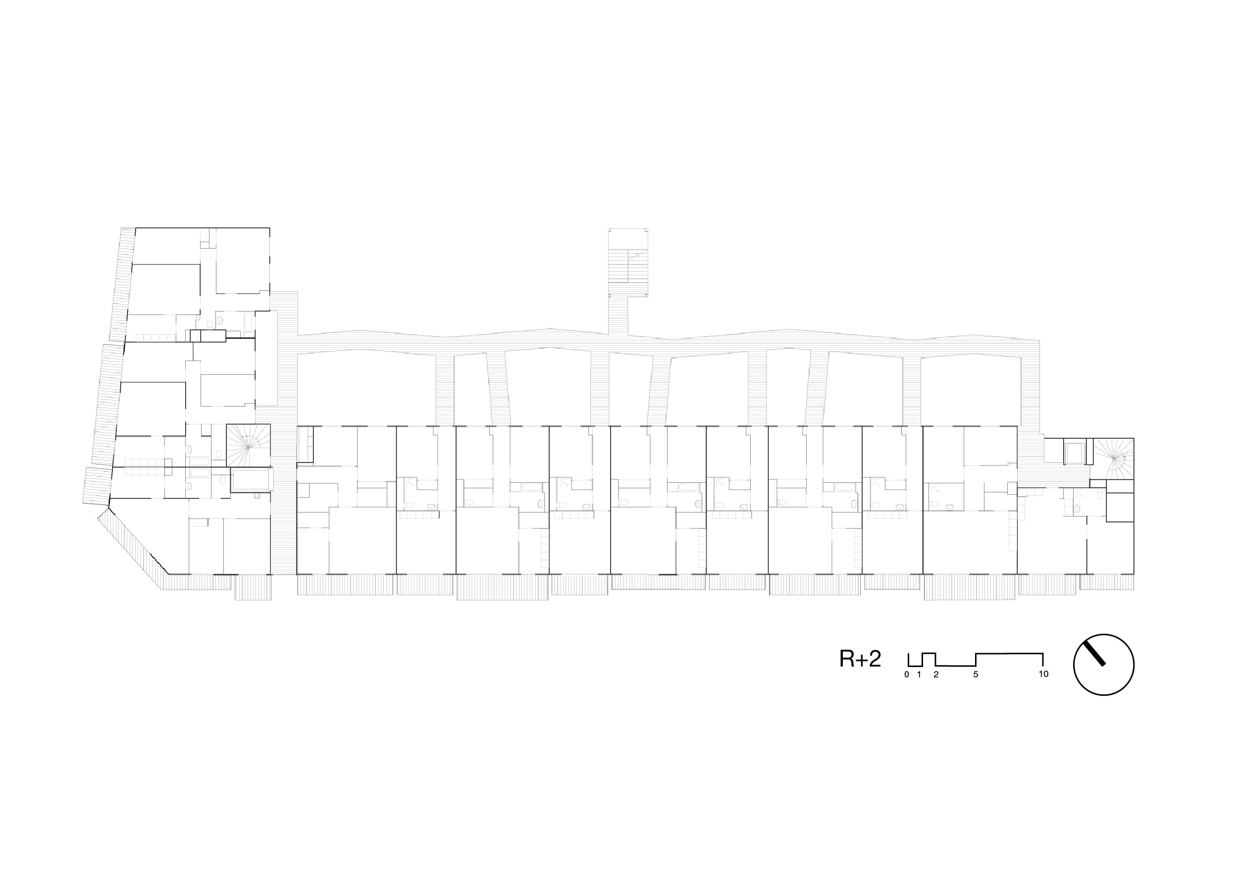
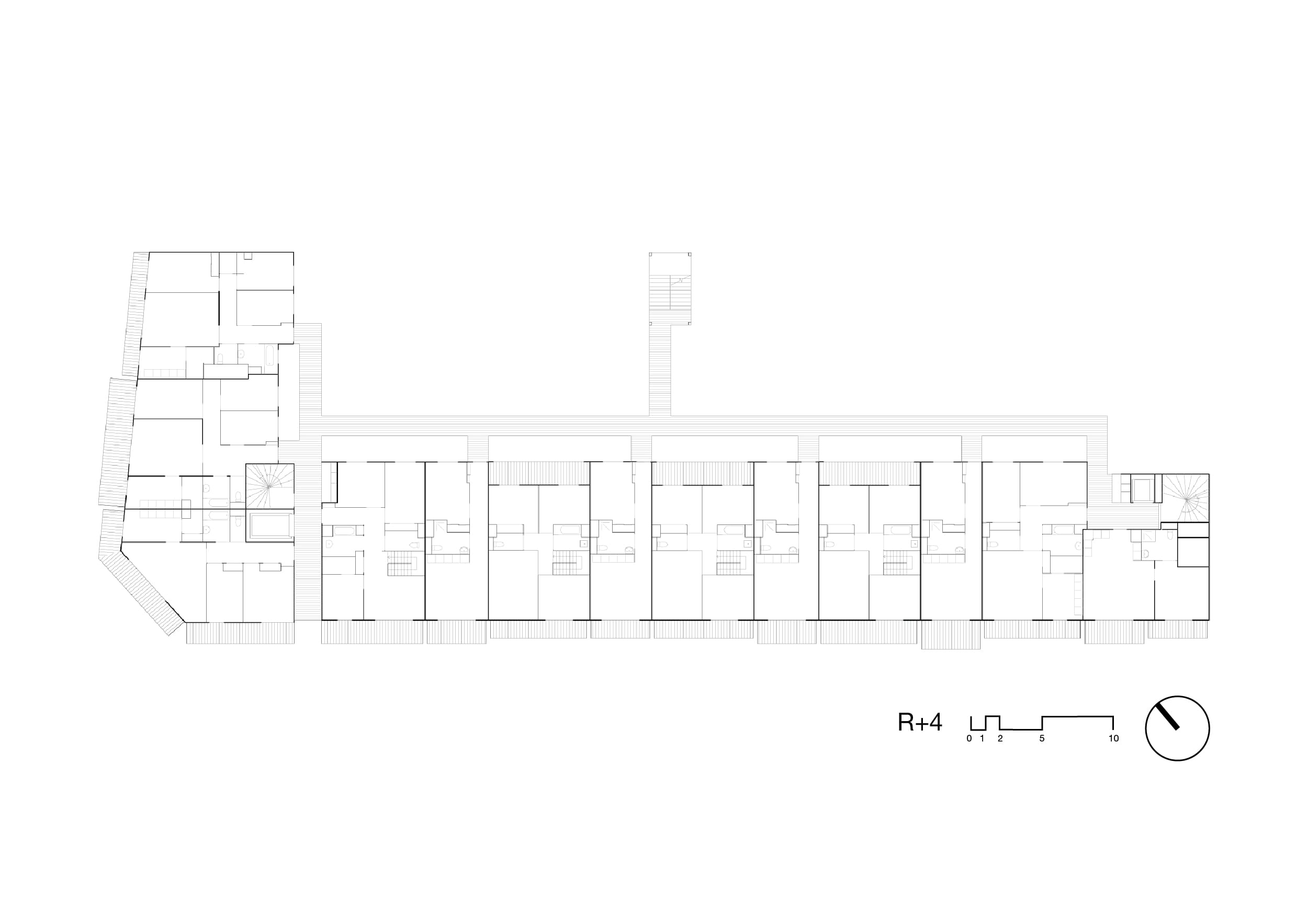
C’est en 1891 que la Ville de Paris enregistra la voie de 100 mètres ouverte deux ans auparavant sur les terrains du sieur Delessert, entre la rue Pierre Dupont et le quai de Valmy. À l’extrémité orientale, le canal Saint-Martin, aujourd’hui un lieu de promenade et de villégiature, à l’époque une artère conduisant au bassin de la Villette, quatrième port industriel français après Marseille, Le Havre et Bordeaux Une activité intense dont le souvenir persiste à travers quelques grands bâtiments industriels : la cité Clémentel, l’ancienne centrale électrique de la Compagnie d’air comprimé, ou d’autres, plus discrets sur rue. Appréhendant le contexte comme le mélange de populations, de mémoires, d’activités et de multitudes d’expressions bâties coexistant au sein d’un même lieu, l’opération comporte un gymnase, vendu en VEFA à la ville de Paris, sur lequel se posent 69 logements sociaux. Elle entend d’abord croiser la grande échelle de l’industrie avec l’échelle intime de l’habitation. L’immeuble prend position le long du passage, tient l’angle des deux rues avant de se retourner sur la rue Pierre Dupont en développant un même motif de loggia en mélèze répété sur cinq niveaux, sans volonté d’effacer ou d’amoindrir sa présence et le bouleversement suscités par son arrivée sur la dernière parcelle vide du quartier, un bucolique terrain vague longtemps occupé par un préfabriqué et une « bulle » gonflable abritant un court de tennis désaffectés.
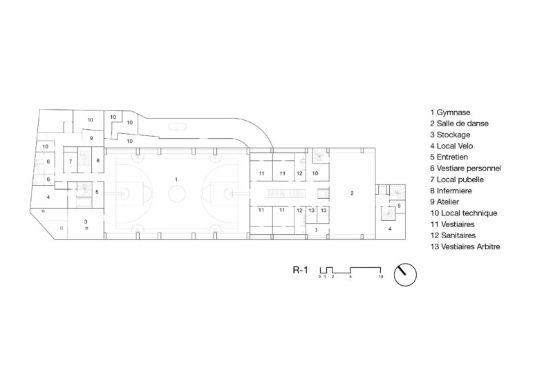
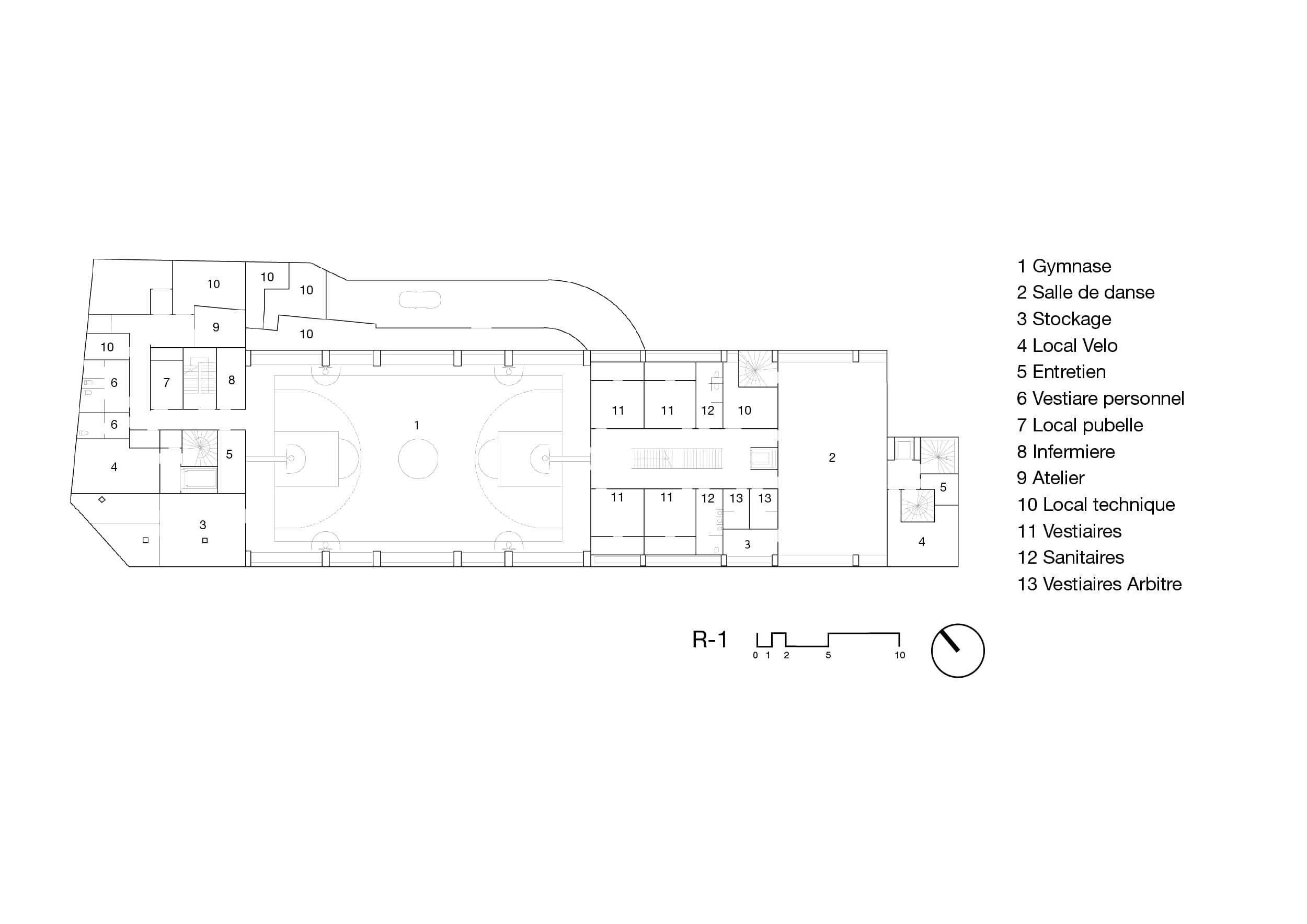
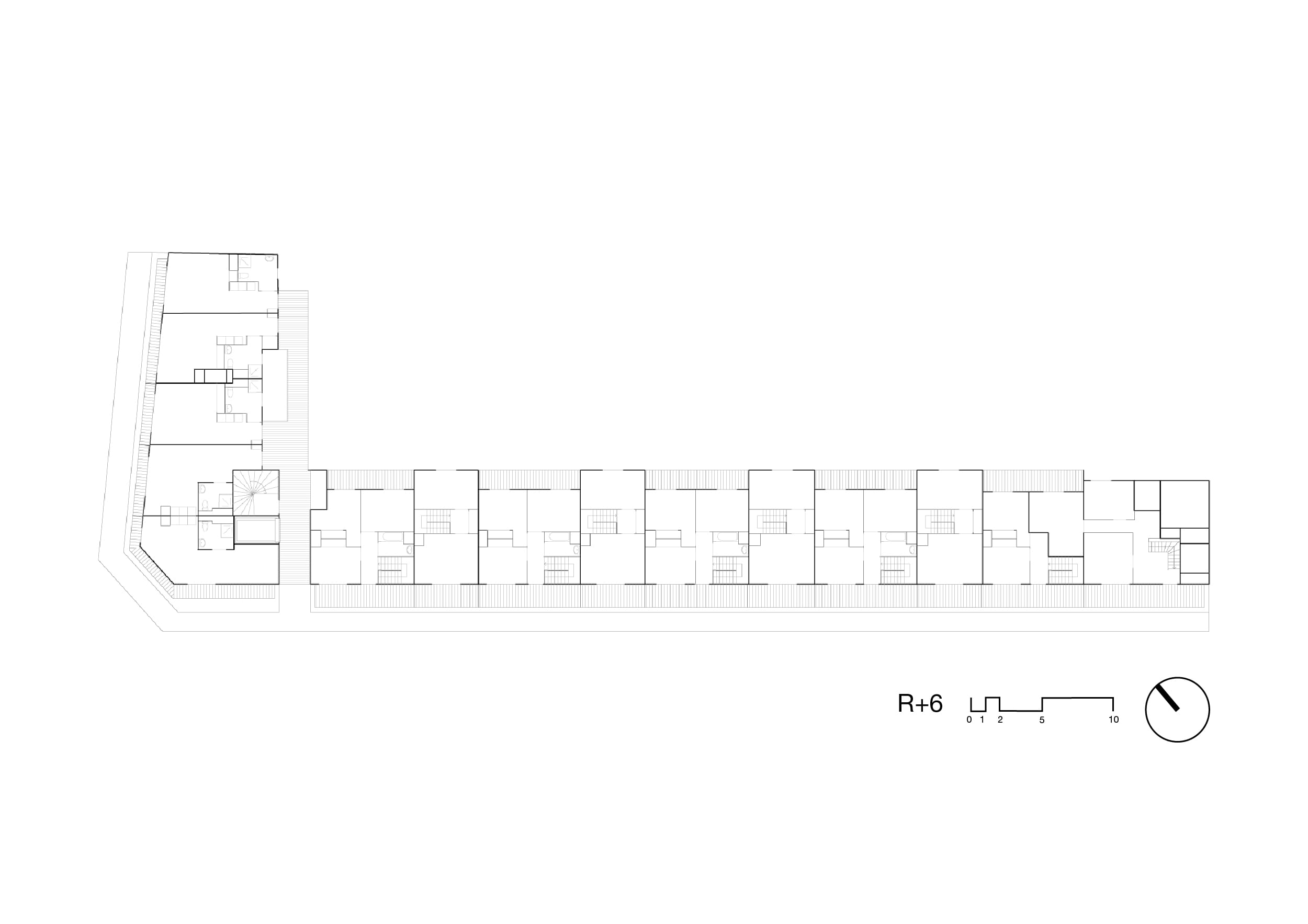
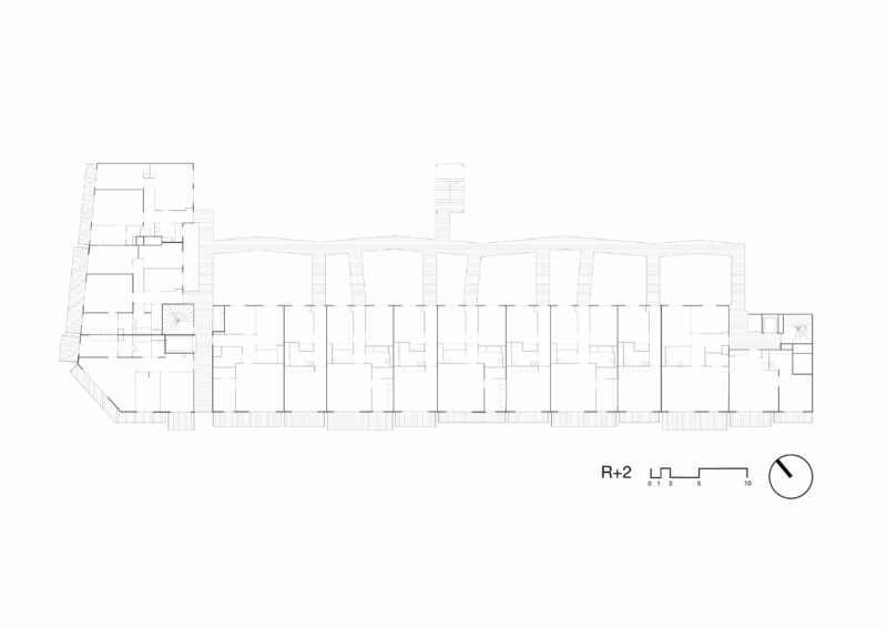
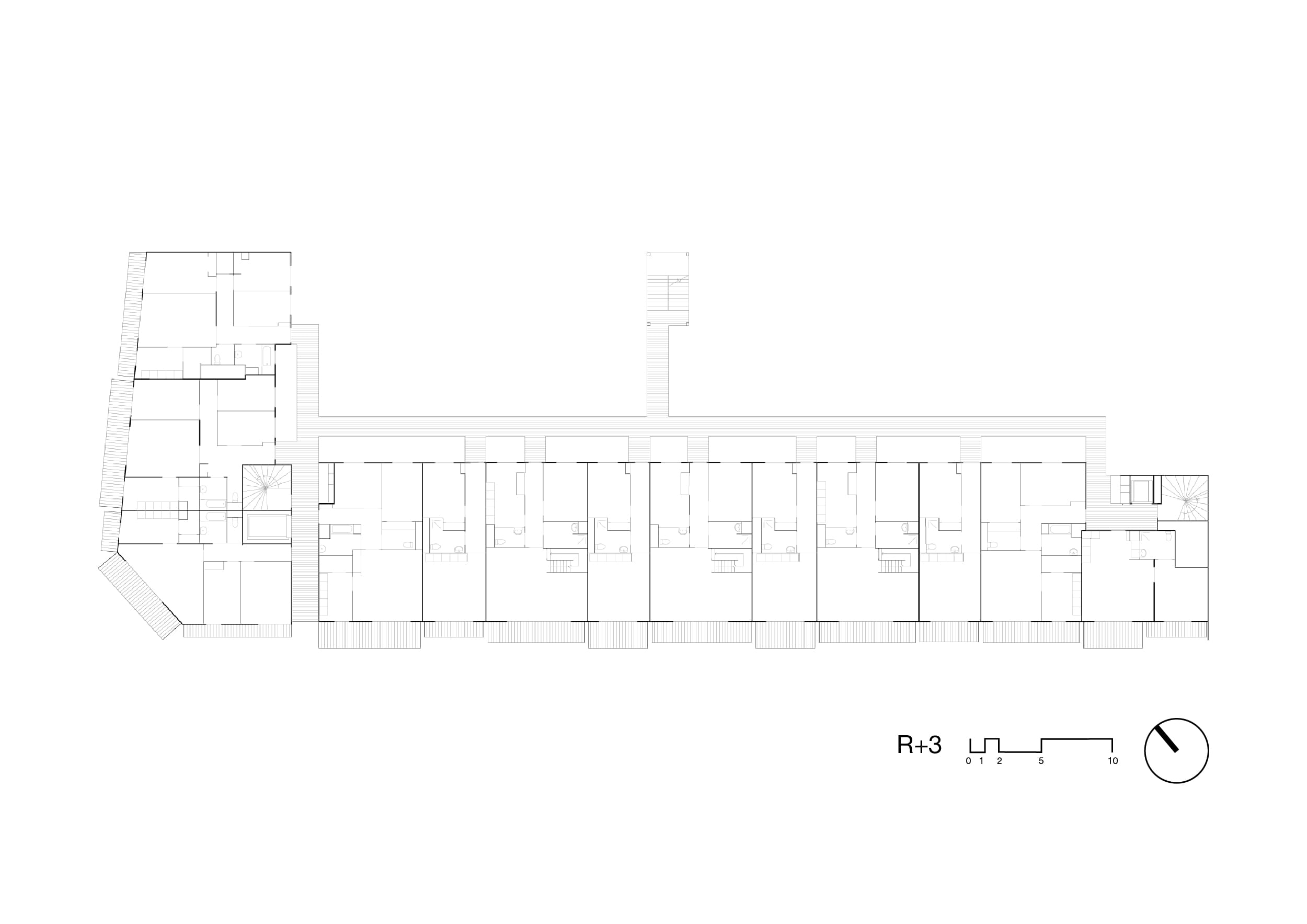
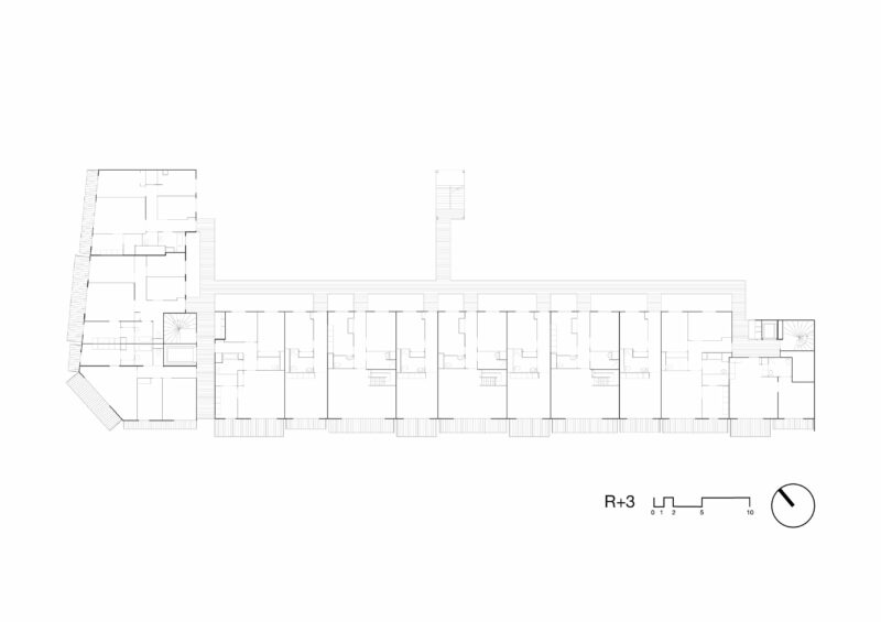
L’adieu difficile à ce dernier bout de campagne à Paris, la densification d’un espace ouvert explique le recours collectif de 180 riverains enregistrés lors de la phase du dépôt de permis. La densification s’accompagne néanmoins d’une diversification de programme qui profite à l’ensemble du quartier, et d’une obligation de mixité programmatique inscrite au PLU. Implanté le long du passage Delessert dans un volume semi-enterré, l’équipement induit des contraintes qui fondent les particularités du projet. La majeure partie des logements repose sur la structure du gymnase, une série de portiques franchissant plus de 20 mètres de portée, dont les poutres forment des refends du premier niveau de logement, et déterminent la trame des voiles porteurs supérieurs. Une faille verticale sépare un premier complexe gymnase/logement d’un plot de moindre dimension, comprenant des logements en étage ainsi qu’une série de locaux de service en rez-de-chaussée : accueil gardien, locaux de stockage divers, accès parkings, etc.
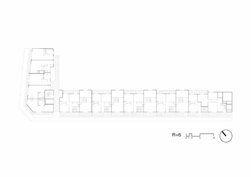
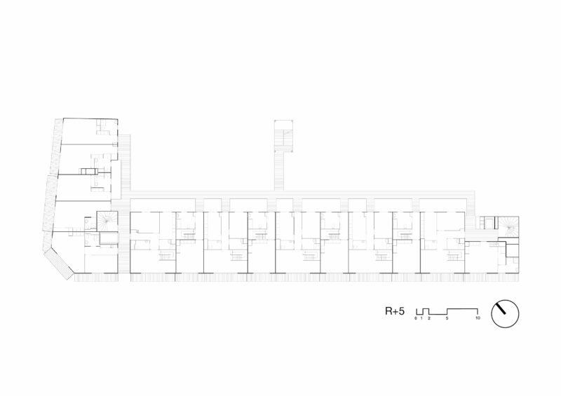
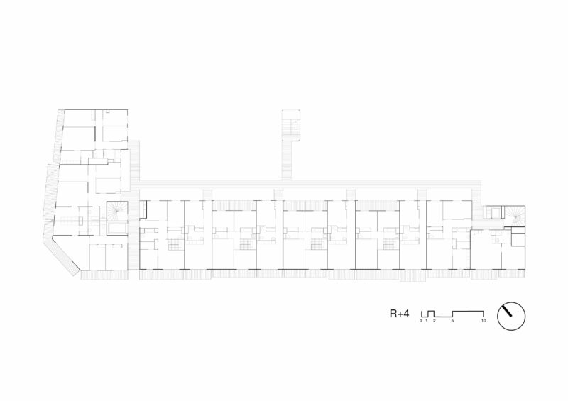
L’accès à chaque logement est une promenade particulière qui débute dans le hall principal, ouvert sur un jardin semi-privatif, suivant un dispositif inspiré de ceux que l’on trouve dans les immeubles d’habitation parisiens des années 60-70, âge d’or en la matière. Du marbre posé suivant un calepinage en point de Hongrie accueille le visiteur et l’habitant, volonté d’offrir dans le secteur social une qualité habituellement réservée aux programmes haut de gamme. L’utilisation de matériaux bruts dans la plupart des circulations autorisait l’emploi ponctuel de matériaux symboliquement luxueux, aussi pérenne qu’une pierre sans générer de surcoût. Une fois passé le hall, l’habitant rejoint son appartement en empruntant une longue coursive implantée à cinq mètres des façades arrière. Ultime seuil, une courte passerelle individuelle qui donnera accès à un logement toujours traversant, complété d’une terrasse paysagère posée sur le socle du gymnase pour tous les appartements en R+1. La superstructure des coursives métalliques forme un paysage en soi au cœur de l’îlot, un balcon filant donnant en surplomb sur un jardin conçu par l’Atelier Roberta. Chaque logement est doté d’une loggia individuelle, dont la profondeur variable est calculée pour laisser à l’occupant sa légitime intimité. Au rez-de-chaussée, une résille métallique filtre la lumière pour ne pas gêner la pratique sportive, réduit l’exposition des sportifs et danseurs du regard des passants.
Loggias, coursives, passerelles, escaliers, espace tampon des jardins : l’opération ménage l’intimité mais multiplie les transparences et les porosités visuelles, quitte à aller à l’encontre d’une manie contemporaine qui voudrait que la finalité d’une construction soit d’isoler totalement tout un chacun de la vue de l’autre. La descente aux salles semi enterrées est magnifiée par un escalier central multipliant les transparences dans les quatre grandes directions cardinales. Les héberges des mitoyens deviennent un spectacle qui se déploie au cheminement de l’habitant, littéralement projeté dans un univers pluriel de cours arrière et courettes bruissant de destins pluriels.
Regardant plutôt du côté des pittoresques parcours domestiques de « mon Oncle » de Jacques Tati, ou des ambiances de « Fenêtre sur cour » d’Alfred Hitchcock, le bâtiment se veut autant une machine à habiter qu’une machine à voir. Rue, ville, passant, cœur d’îlot, voisin, tout se voile et se dévoile tour à tour au gré du déplacement, ces visions fugaces amplifiant le potentiel des rencontres, magnifiant la diversité et l’énergie qui font le meilleur des métropoles.

Nous utilisons des cookies pour optimiser notre site web.