| 2023, PARIS (13) ZAC PARIS RIVE GAUCHE SECTEUR MASSENA |
| 133 LOGEMENTS AVEC 7 ESPACES PARTAGÉS & COMMERCES |
| ARCHITECTE – AAVP + CATHERINE DORMOY ARCHITECTES AVEC ANDREA GALLINA |
| PAYSAGISTE – DAVID BESSON GIRARD |
| BE – FRANCK BOUTTÉ – AVEL – CETEAM – C&E – DAL |
| GRAPHISTE – ÉCOUTER POUR VOIR |
| ARTISTE – 1024 ARCHITECTURE |
| AMÉNAGEUR – SEMAPA |
| MOA – OGIC + COGEDIM |
| 28 M€ HT – 8 890 M² SDP |
| NF HABITAT HQE NIVEAU EXCELLENT |
| ENTREPRISE – LEGENDRE – RUBNER – ATOLE |
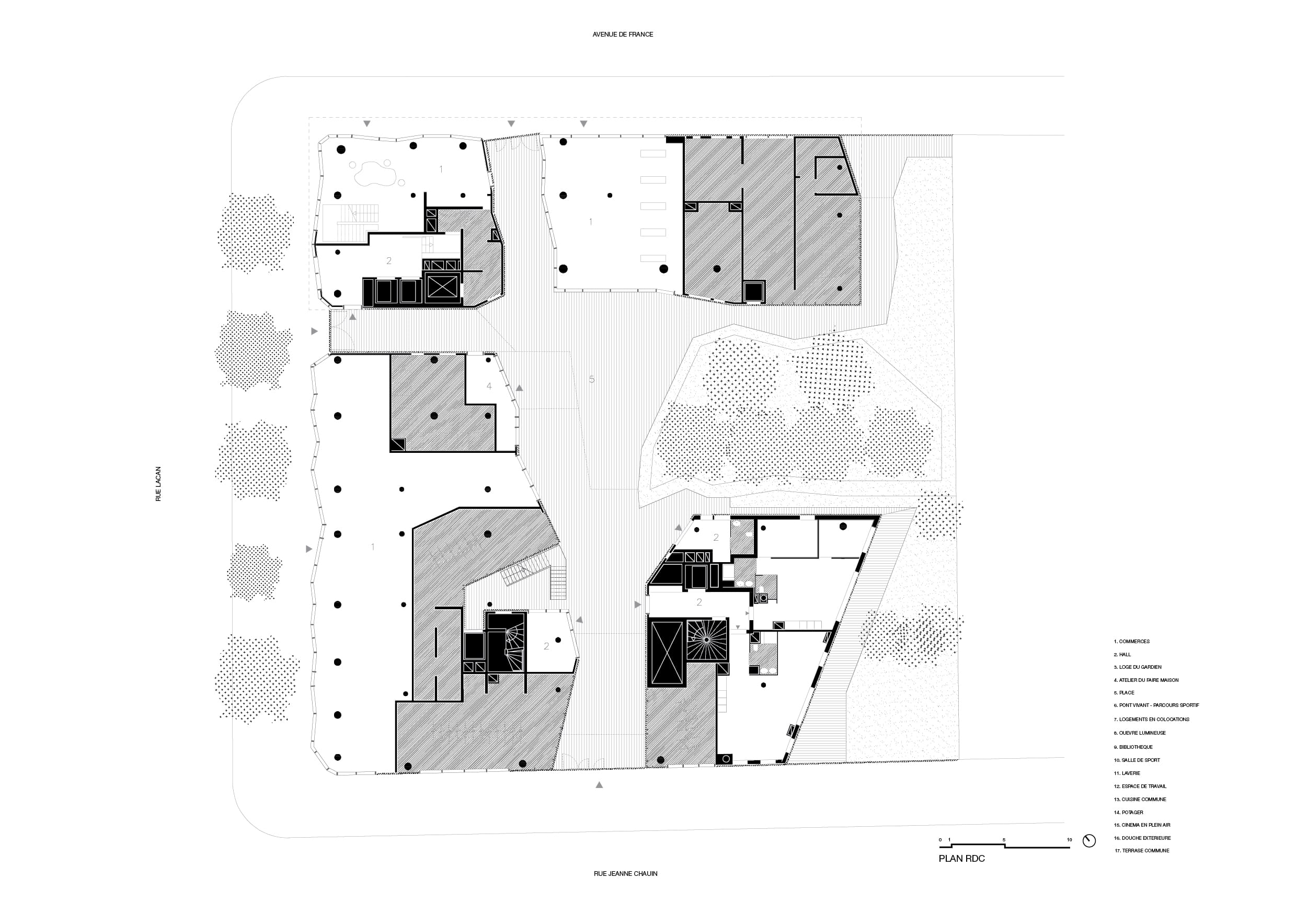
| LE NUDGE & ATELIER DU FAIRE MAISON, SALLE DE SPORT, BIBLIOTHÈQUE, SALON D’HIVER, POTAGER, BUANDERIE, CINÉMA PLEIN AIR, JEUX ENFANTS, PARCOURS SPORTIF, FAÇADE DU MOI, JARDIN VERTICAL, ACCÈS AUX LOGEMENTS PAR UNE PROMENADE |
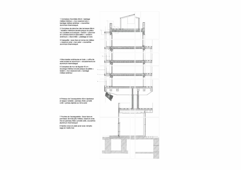
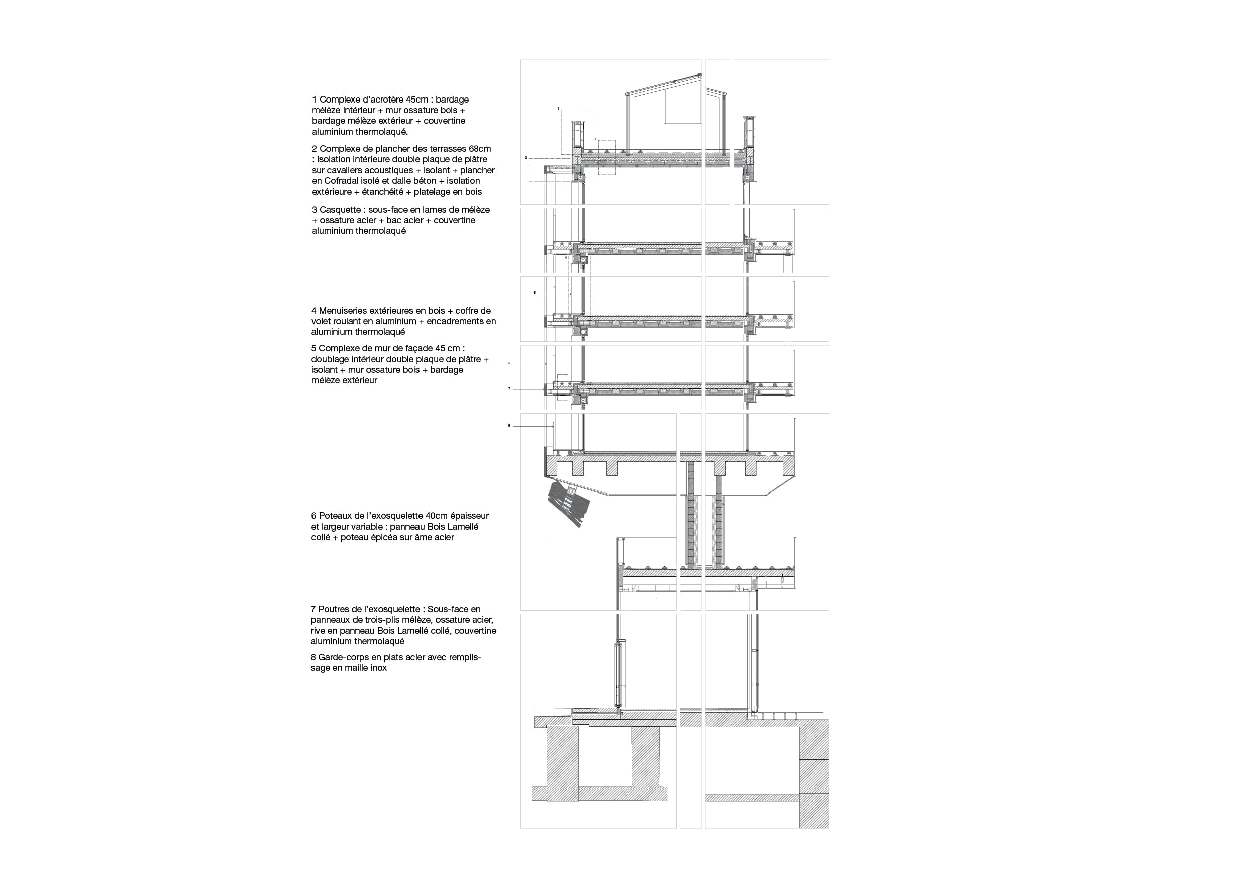
| STRUCTURE & ENVELOPPE EN BOIS SUR SOCLE BETON AU-DESSUS DE LA COUVERTURE SNCF DE L’AVENUE DE FRANCE |
| PERSPECTIVE @INUI @BUILT – PHOTO @NICOLAS TROUILLARD |
C’est un immeuble et c’est un pont, une architecture, un ouvrage d’art. Lancé sur des voies de chemins de fer, il met en relations des rues et plus encore des habitants. Forteresse aux flancs sombres mais lumineux en son cœur, il s’organise comme un navire doté d’échelles et de coursives, et s’il advenait qu’un jour, montée des eaux oblige, il se retrouve encerclé par les flots, il voguerait. Sous son appellation énigmatique de New G, l’immeuble est une expérience, une somme d’audaces et d’attentions. Ceux qui en sont les passagers le savent et mieux le vivent car cet immeuble est vivant.
À l’origine, sur l’Avenue de France, épine dorsale d’un quartier en constante expansion à l’Est de Paris, une dalle avait été tirée. Un premier projet tout en béton signé par l’architecte japonais Kengo Kuma devait y éclore. Les aléas de la commande et des concours en interrompirent le processus. Vint la compétition suivante. Le cahier des charges privilégiant le travail en commun, l’équipe due être constituée de deux architectes et de deux promoteurs. Catherine Dormoy et Vincent Parreira alliés à l’Ogic et à la Cogedim sortirent lauréats de la confrontation. Une fois le décor installé et les acteurs choisis, la Semapa, précisa ses exigences d’aménageur.
Dans ce secteur, il fallait dynamiser la vie de quartier, faire du carcan réglementaire un levier pour aboutir à des constructions vertueuses en matière d’environnement. L’immeuble devait se glisser dans le plan général établi par l’architecte Bruno Fortier. Celui-ci réclamait des alternances d’aspects entre l’intérieur et l’extérieur des îlots ainsi que des continuités dans les failles glissées entre les constructions. En conséquence, les architectes ayant opté pour le noir en façade sur rue, blanchirent l’intérieur de l’ilot. Il était encore demandé de construire en bois, matériau alors paré de mille vertus et les constructeurs s’y plièrent. Sa légèreté leur permettait d’édifier sur la dalle de béton un ensemble de 133 logements culminant à 37 mètres. En somme, sur le papier tout semblait idéal.
Mais l’architecture est un art de prototype. Chaque immeuble est une ébauche et simultanément son résultat. Innover c’est prendre des risques et tout cela coûte, en temps, en stress, en argent. Ce qui semblait simple ne l’était pas et de construire sur cette dalle de béton aux descentes de charge prédisposées et donc imposées, avec ses fondations de poteaux fichés dans le sol, s’avéra une lourde contrainte. La construction de l’immeuble devait coûter 2400 euros du m2, elle en couta 3500 (variante : couta un peu plus que prévu). Les promoteurs se battirent pour rogner ici et là, les architectes se battirent partout pour que l’esprit de leur projet survivre. Ils ont tenu. Nous leur en saurons gré car le résultat est au-delà des espérances. C’est un cas d’école et l’on viendra de loin pour le contempler.
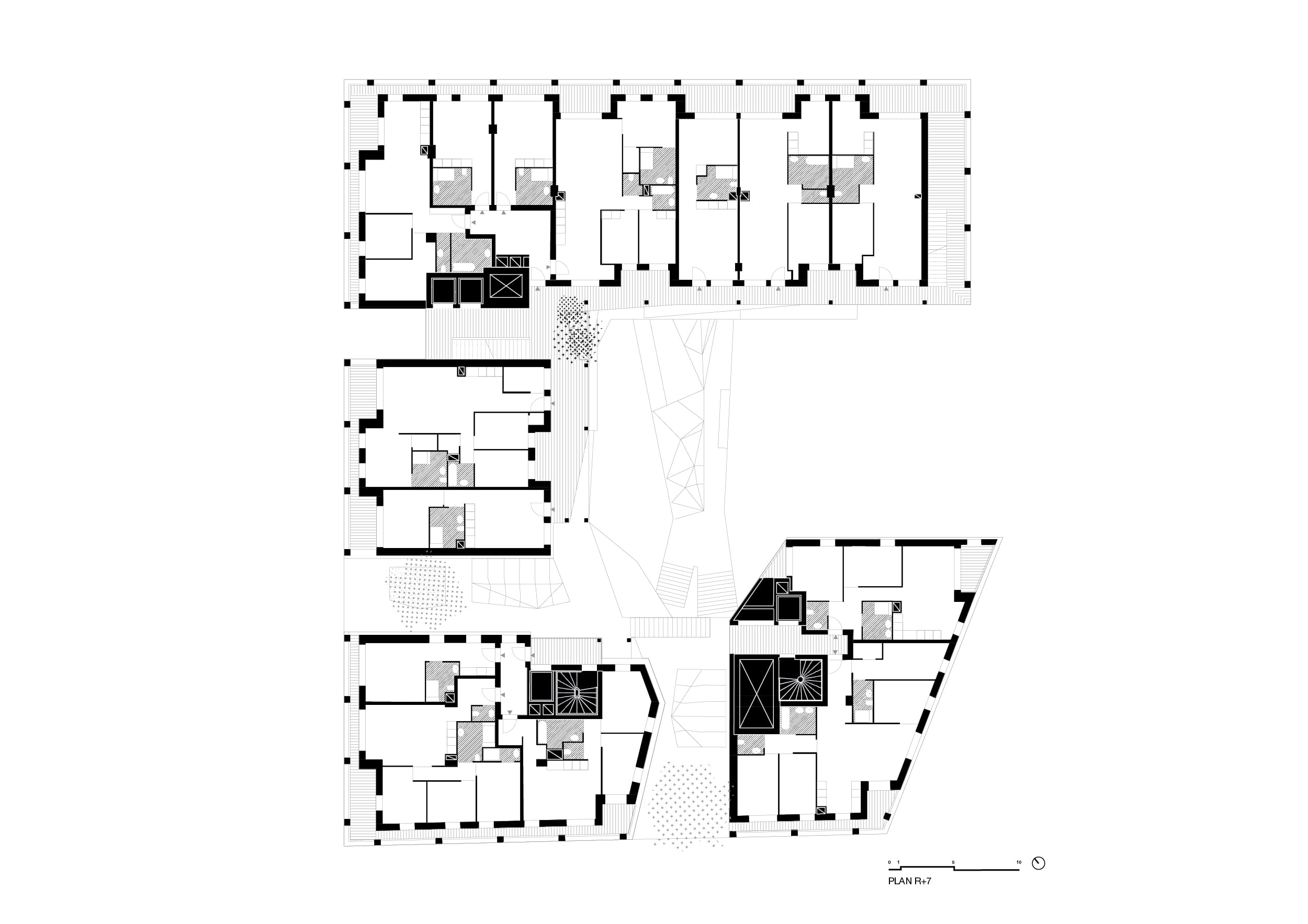
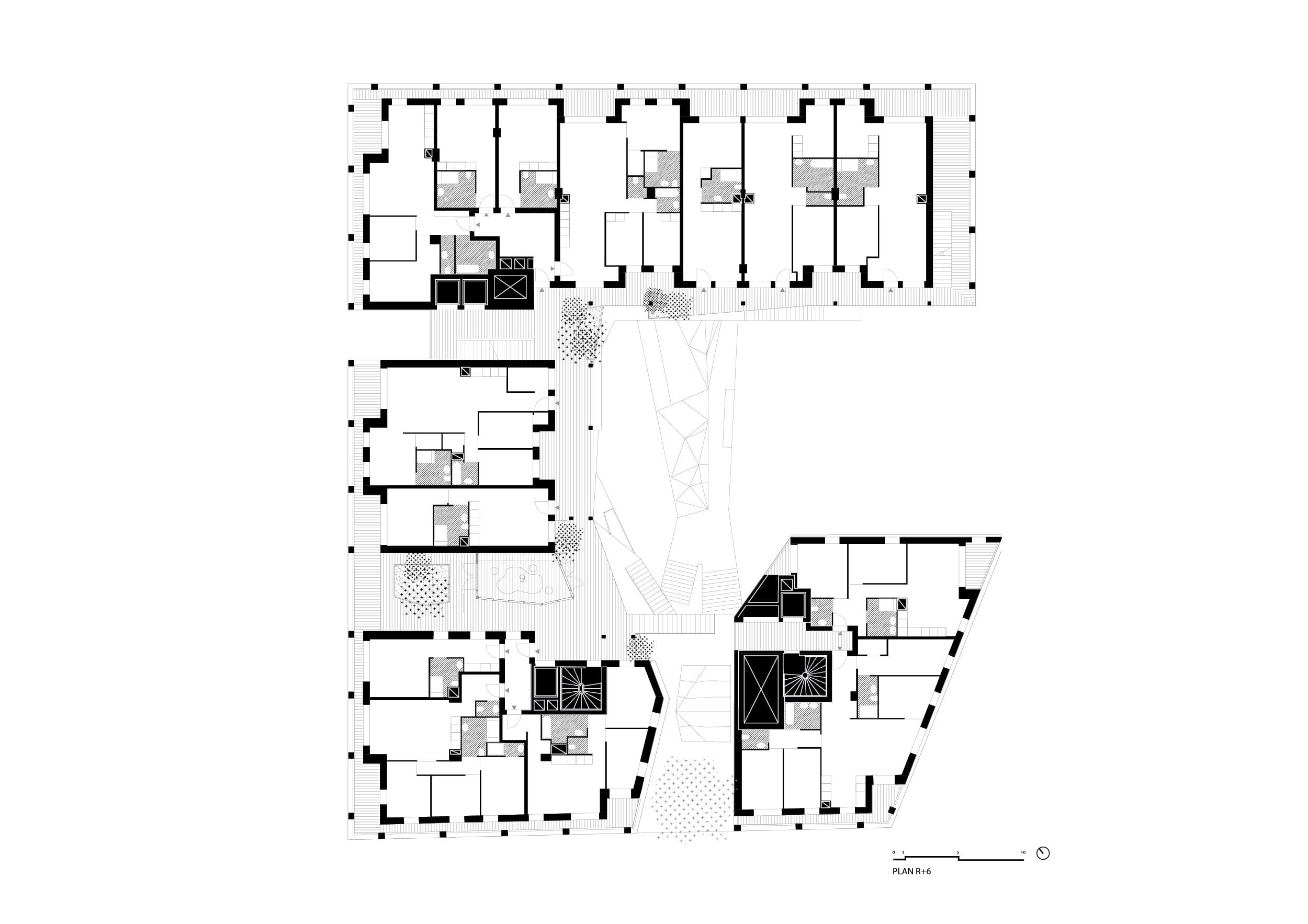
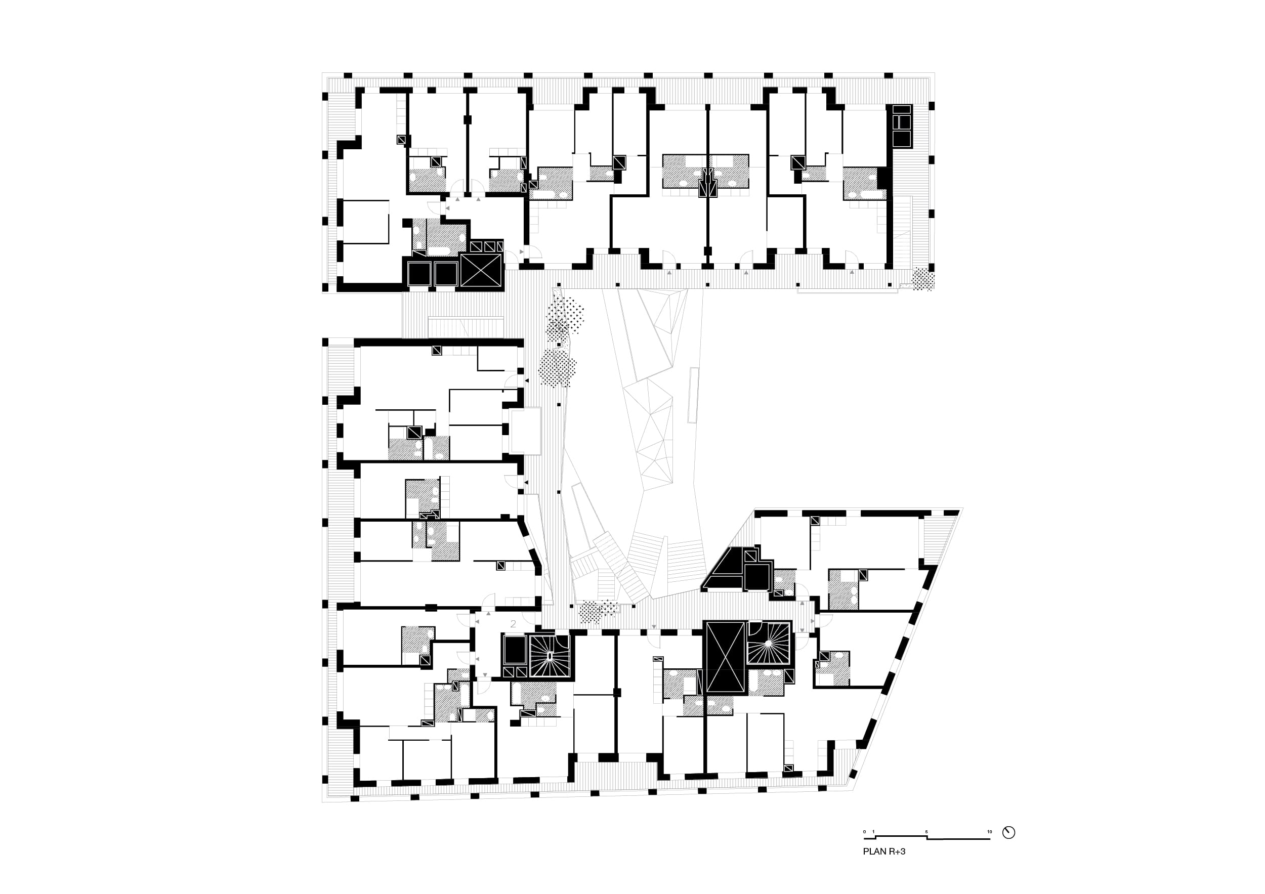
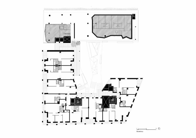
Donc un îlot
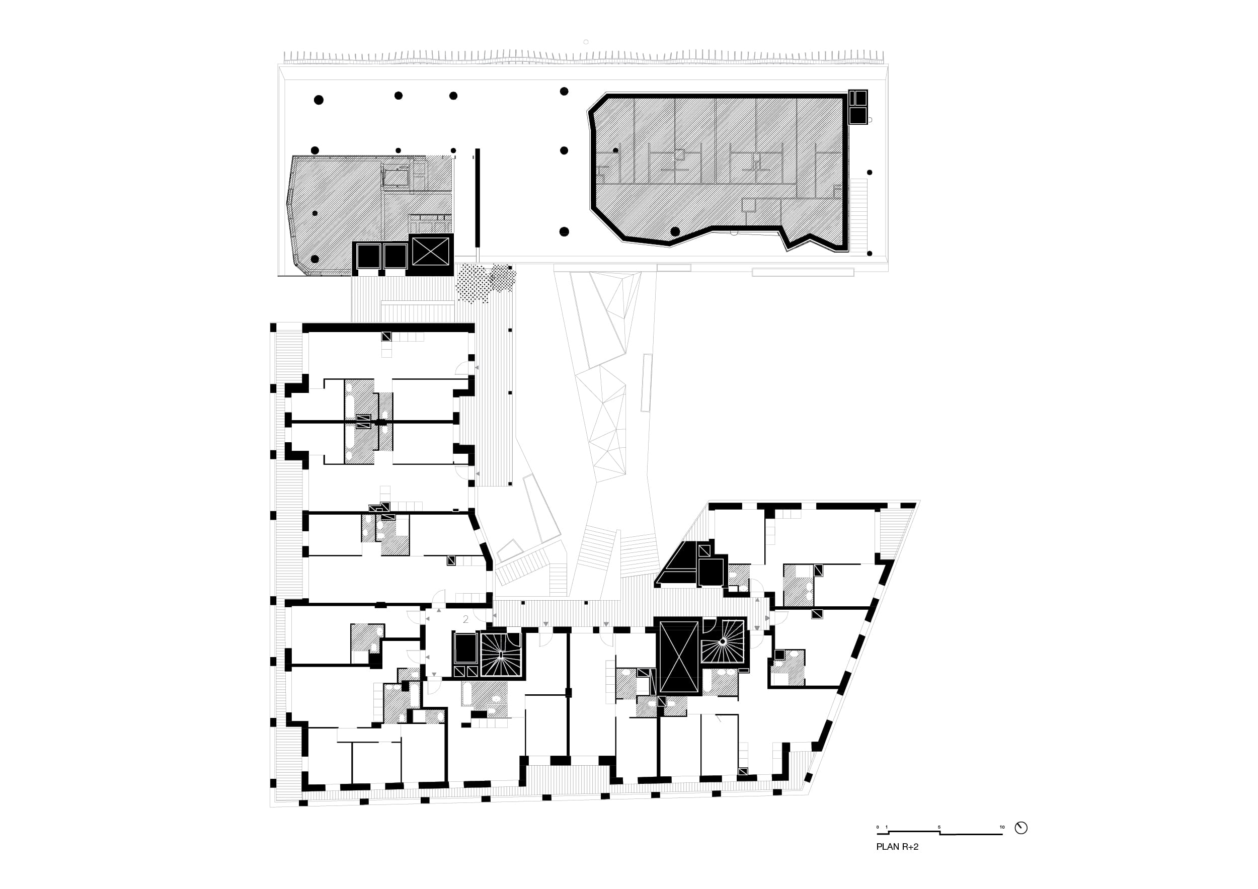
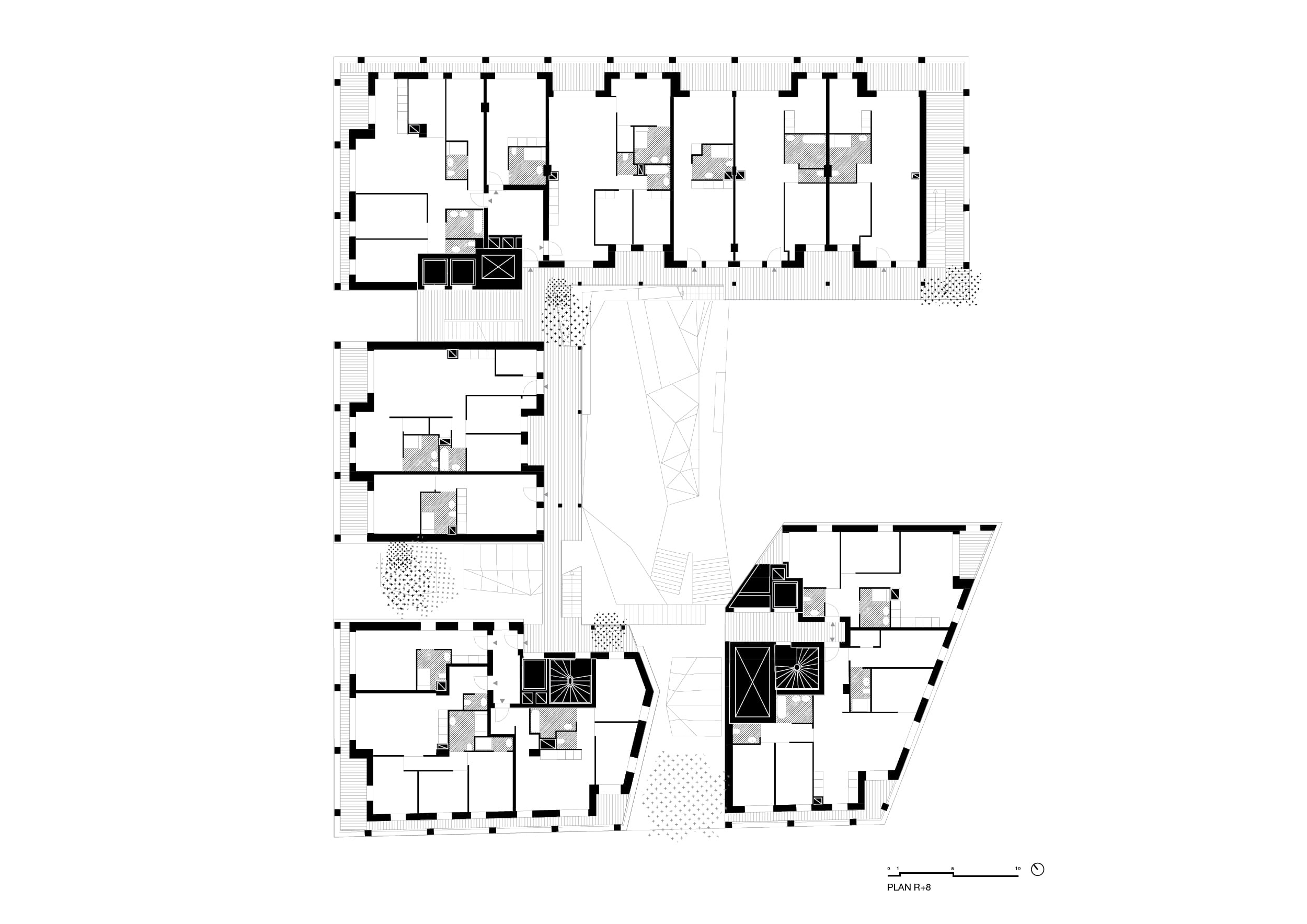
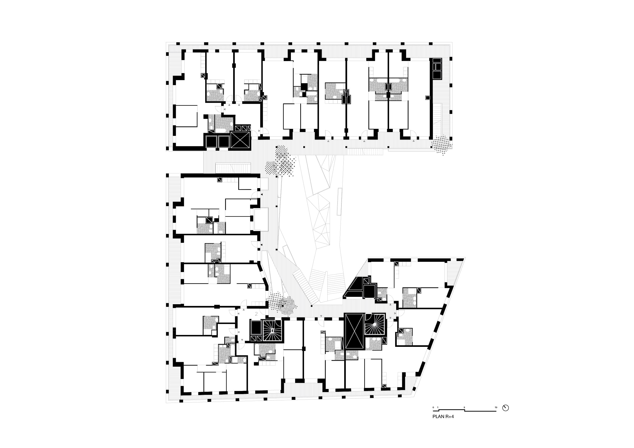
Instable en quelque sorte, car sur cette avenue de France bordée de voies de chemin de fer, le sol est truffé de réseaux. Des rails, des flux, de l’énergie y circulent en faisceaux. Sur ces vides le bâtiment doit s’implanter. Premier défi donc, celui de prendre assise sur une faille. Sur les piliers de béton préexistants, les architectes vont dresser un immeuble de bois. Le matériau est tendance, il est surtout léger. Ils vont le dresser sur cette avenue comme une masse sombre, comme un signal. Sa stricte composition sera un premier leurre car elle dissimulera une pyrotechnie d’escaliers, de coursives, de chutes et d’élancements visuels. L’exosquelette de bois dont le péristyle en débord protège le rez-de-chaussée se pare d’une kyrielle de balcons et de loggias qui prolongent à l’extérieur les appartements développés dans les étages. Cette première peau de bois s’ouvre par trois côtés pour ménager autant d’accès. La forteresse n’en est pas une. Les circulations y sont multiples, variées. En façade, flottant au-dessus du socle, une œuvre d’art dynamique et lumineuse, confère au bâtiment une identité singulière. Sur l’avenue, nul ne peut l’ignorer. A l’intérieur de l’îlot dont les accès font écho aux grandes failles du plan masse du secteur. La blancheur des façades intérieures s’offre en contraste aux sombres façades sur rue. Alternative pop art, blanc et noir en balancement, mise au carreau comme dans les échiquiers. Ici le jeu est partout. La dilatation des surfaces communes, la prolongation des logements par des coursives aux proportions généreuses, les terrasses offertes aux appartements, les parcours sportifs et ludiques signent une architecture où le don est une éthique. Ici, la petitesse n’est pas de mise et les sportifs, les enfants, les voisins avides de rencontre le constatent dès le premier jour.
Dans le détail, sur cette dalle de béton, les architectes ont commencé par définir un système de poteaux-poutres qui est encore une trame de 4,20m sur 6,30m. A celle-ci, ils ont ajouté une coursive dite « innervante », comprenez qu’en sus de donner accès aux logements, avec ses dimensions généreuses elle sert de lieu de circulation et d’activités. Au cœur de cette trame de poteaux-poutres, les architectes ont glissé une bande servante. Elle est ponctuée de gaines techniques positionnées tous les 6,30 m. En s’y branchant, l’occupant d’un logement capte les flux et les énergies que sont l’électricité, l’eau… Le chauffage est assuré par le plancher, les cloisons se montent et se démontent à volonté. Les logements s’adaptent aux désirs de leurs occupants.
Déterminés à offrir plus de souplesse encore aux futurs occupants, les architectes ont développé l’idée d’une « pièce baladeuse ». L’expression est heureuse car elle fleure bon l’école buissonnière et le pas de côté. Elle traduit en poésie le langage boutonné des notaires. L’idée est simple : permettre en priorité au voisin immédiat, et s’il le souhaite, d’acquérir la pièce que l’on désirerait vendre. La famille se modifiant, les enfants quittant le foyer, il arrive que celui-ci se retrouve surdimensionné. Pour peu que la famille d’â côté s’élargisse… le transfert de la pièce baladeuse devient la solution. Il aura été plus astucieux encore de doter cette fameuse pièce d’une porte la rendant ainsi indépendante mais elle aurait dû être pleine, comme toutes les portes palières, exit alors de la lumière naturelle procurée par la baie vitrée. Or c’est là un point capital : tous les appartements sont dotés de fenêtres allant du sol au plafond. La lumière, l’éclairage, l’atmosphère en sont magnifiés… Fiat Lux !
Plus qu’un intérieur, un panorama
Ce qui attire l’œil et séduit de prime abord qui pénètre dans l’îlot, c’est l’accumulation arachnéenne des escaliers. Elle confère à l’ensemble un vertige piranésien qui excite les sens et donne envie de se dégourdir les jambes. Tous les espaces communs en sont innervés et l’on découvre avec surprise qu’il existe plusieurs chemins pour circuler entre les étages. C’est une rareté qui fait de cet ilot une ville en réduction plus encore qu’un village. Ces espaces communs sont la raison d’être de toute l’architecture. Ils visent à en dynamiser les pratiques, à les rendre ludiques et sujettes aux surprises. En somme ici, le bâtiment se veut générateur de plaisirs.
Le New G serait-il le Point G de l’architecture domestique ?
Le Nudge
Cette clarté dans le système constructif, ce luxe d’espace, cette audace formelle distillée d’étage en étage, les architectes l’ont mise au service d’un concept, le Nudge que l’on pourrait traduire par coup de pouce, ou coup de coude. Auparavant, lors de la consultation réinventer Paris, Catherine Dormoy et le promoteur Ogic avaient ensemble abordé cette méthode où l’entraide, la solidarité, un sens de la communauté, une joie de vivre ensemble, de partager un immeuble qui ne soit pas comme les autres ouvraient des pistes. Inspiré des travaux du prix Nobel d’économie Richard Thaler, le Nudge est porteur d’espérances. Certes, le Français naturellement individualiste peut trouver à cette philosophie du partage des relents orwelliens. Bienvenue en somme dans la coercition douce pourrait-on dire mais il se trouve quantité d’êtres pour qui prendre une douche longue avec une fenêtre ouverte au mépris des considérations énergétiques pose problème. Ils cherchent alors des solutions, cherchent à modifier leurs usages, le Nudge est là pour les accompagner dans cette voie nouvelle.
Le Nudge appliqué au New G c’est en résumé une trentaine d’innovations certaines formelles, d’autres liées à des applications numériques permettant de gérer sa consommation d’eau par exemple. En vérité, les architectes renâclent un peu à reconnaître dans cette construction une expérience première. En leur for intérieur, ils ne se reconnaissent en rien novices en matière de Nudge. Il leur semble même que dans chacune de leurs réalisations précédentes ils se sont essayés à cette convivialité en offrant plus de surfaces à leurs appartements, en favorisant les escaliers et la largeur des halls, en assurant la promotion des écogestes, en privilégiant les appartements traversants, les corridors élargis, les coursives devenant promenades, les cœurs d’espace offerts à tous. N’empêche toutes ces bonnes recettes testées avec parcimonie ici et là, ce concours a permis de les booster et si certains n’y voient que des gadgets d’autres s’en font les militants.
Un graphiste
Une fois l’espace idoine créé par les architectes, c’est à Malte Martin du studio de design graphique et design d’espace Ecouter pour voir qu’est revenue la tâche de mettre en œuvre les innovations du New G, de les traduire dans du concret.
Idée principale : apporter dans des espaces privés une expérience acquise dans la gestion des espaces publics, opérer en somme un renversement des usages. Ainsi les couloirs d’ordinaire étroits pour ne pas gâcher de m2 sont devenus ici des promenades favorisant la rencontre et les échanges. Malte Matin a partout agi en acupuncteur, décidé à traduire dans du palpable les réflexions d’Ivan Illich, philosophe théoricien d’une convivialité débarrassée de toutes les techniques inutiles.
Ici, l’immeuble est appréhendé comme un village vertical édifié autour d’un espace commun central où s’installera un café, un atrium, une agora. Au sein de la résidence arborée on trouve ainsi un atelier de bricolage faire-maison, sis au rez-de-chaussée, une salle de sport, une bibliothèque, un potager, une laverie-buanderie collective, une cuisine doublée d’un espace réservable sur le roof top. Tous ces espaces communs surajoutés à l’immeuble sont calés dans des serres volontairement biscornues et auréolées de couleurs vives à la Mondrian, jaune, rouge, bleu. Les mobiliers, fresques et aires de jeux répartis dans les espaces partagés et parfois dans les appartements eux-mêmes distillent les concepts du Nudge.
Un usage des couleurs différenciées permet de se repérer dans les espaces, le rouge étant réservé aux zones dynamiques, le jaune à celles dévolues à la convivialité. Des installations modifiables par tous sont disséminées sur les coursives à différents niveaux tel le mur pixels, une sculpture murale qui permet d’écrire des mots ou de faire des signes à volonté, tels encore divers supports d’écriture. Des totems sont installés sur le toit terrasse. Chaque entrée d’appartement est encore signalée par un élément de décoration baptisé La façade du Moi. De couleur noir il est placé à côté de la porte d’entrée. Les habitants ont eu l’opportunité de choisir parmi quatre modules en quinconce proposés. Tous comportent des crochets de porte-manteau. A chacun de la « customiser » pour marquer son territoire, préciser ses goûts, sa personnalité, transmettre une information, laisser un message ou placer sa plante verte.
Après l’esprit, le corps. Le Nudge pousse les gens à faire du sport, à pratiquer diverses activités physiques. L’idée est ici d’inciter partout les résidents à emprunter les escaliers plutôt que les ascenseurs. Le parcours sportif qui serpente dans l’immeuble est agrémenté de rambardes, de bancs, d’escaliers dont l’usage athlétique est explicité dans un « cahier vitalité ». Des fresques « tri sélectif » à vocation pédagogique fournissent encore des informations aux habitants, établissant des correspondances entre les contenus d’une bouteille, d’un verre, d’une carafe ou d’une douche.
Un cœur paysager
David Besson a eu en charge la réalisation de la partie paysagère du New G. D’entrée il rappelle qu’il a tenu à refuser l’aspect moraliste du Nudge en le détournant de son caractère orwellien. La nature se doit de demeurer rebelle. Point de mise au carré. Seules les contingences techniques ont imposé des choix. Ainsi, le poids de la terre étant rédhibitoire et l’épaisseur du terreau ne pouvant dépasser 40 cm en cœur d’îlot il a usé de terre allégée. Ensuite, il a opté pour des espèces naturelles grand format. Il a planté des Parotias, espèce végétale dont la caractéristique est de se ramifier naturellement, de s’auto-greffer, les branches entrant en contact les unes avec les autres se soudant un peu à l’image de ce que la convivialité revendiquée du New G voudrait voir se produire entre les habitants.
Une œuvre d’art en plus
Enfin, avec l’arrivée de quelques commerces d’un restaurant dont la partie arrière se glissera sous une passerelle dont l’effet protecteur devrait neutraliser les perturbations sonores de l’établissement, le New G s’est doté d’une œuvre en façade. Plutôt que d’installer en cœur d’îlot une sculpture, les architectes ont fait appel à 1024 architecture, structure spécialisée dans les échafaudages et les installations lumineuses. La réglementation urbaine voulant que tous les bâtiments érigés sur ce côté de l’avenue de France soient hissés sur un rez-de-chaussée en double hauteur et en retrait, les étages supérieurs pouvant alors être bâtis en saillie vers l’avant, c’est dans l’espace de cette sous-face dégagé, que l’œuvre prendra place. Sa rampe d’une trentaine de leds générera une onde lumineuse rythmée.
Elle sera le signal du New G, son oriflamme électrique.
Bref, le New G s’offre aujourd’hui comme une utopie réalisée dans un décor expressionniste où chacun à son rôle à jouer, rôle tout à la fois ludique et sérieux. Avec sa façade en bois, il s’inscrira désormais comme un exemple de ce qui ne peut plus se faire. Car les pompiers ne veulent plus de ce bois en façade. Il faut l’enrober et cela coûte cher. Quand bien même le bâtiment ne présenterait aucun danger, ses successeurs devront se soumettre à des réglementations plus draconiennes encore. La liberté de création est en souffrance, le New G est un héros.
Paroles de résident.
Nicolas Payet a fait partie de la première fournée de résidents. En pionnier résolu il prend son rôle à cœur puisque sans attendre le voici intégré au conseil syndical. Lui, dont l’enfance dans le Nord de la France s’était déroulée dans un semi-phalanstère, lieu communautaire autogéré où une vingtaine de familles partageaient salle à manger et salle de télévision, il a retrouvé dans le bâtiment Nudge des échos de son passé. Que le New G soit sa Madeleine, c’est un miracle inattendu. Plus que tout, ce qui l’a conforté dans son choix de s’installer ici, dans cette partie de la capitale, c’est d’y avoir trouvé un appartement doté d’une vue atmosphérique, d’un balcon et d’un décor sans cesse changeant. « Quand on sort de chez soi dit-il on découvre toujours quelque chose, le ciel, les nuages mais encore les escaliers et les habitants qui s’y meuvent. Où que l’on pose le regard, on ne s’ennuie pas ». Le New G est un spectacle. Si la vue sur rue lui semblait évidente, il a découvert encore que celle sur « cour », sur l’intérieur de l’îlot, était-elle aussi source de plaisirs. Sis au dixième étage, son T3 (64 m2) traversant lui offre tout Paris en fond de décor. Sur plan, il a fait bouger des cloisons avant que celles-ci ne soient posées. Il a opté pour une cuisine semi-fermée plutôt qu’ouverte. « Certes reconnait-il, les équipements Nudge ont du mal à se mettre en route ». Tout n’est pas encore calé mais la volonté de quelques résidents plus accrochés au concept que d’autres devrait accélérer le processus. Enfin, s’il sait aussi que certains habitants se plaignent du caractère labyrinthique de l’ensemble et se perdent dans les coursives, il trouve cela très bien. « C’est en se perdant dit-il que l’on fait de rencontres, parfois tout simplement avec soi-même ».

Nous utilisons des cookies pour optimiser notre site web.